Casa Indipendente 14 vani 532mq

Dati annuncio : Vendita Casa Indipendente, Mandello del Lario
Mandello, nell’affascinante cornice della storica frazione di Somana, in posizione tranquilla e riservata, immersa nel verde, splendida soluzione unifamiliare con ampio giardino privato già suddivisa in tre appartamenti, ognuno su tre piani differenti, oltre sottotetto da cui è possibile ricavare una quarta abitazione di quattro vani e doppi servizi.
La proprietà, disposta su tre livelli fuori terra oltre accessori a piano interrato e al sottotetto al piano terzo, si compone di:
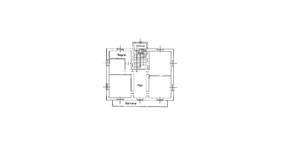
- Piano Terra: Ingresso sul disimpegno, quattro locali oltre servizi, scala di accesso centrale ai piani superiori.
- Piano Primo e secondo: anch’essi con distribuzione speculare al piano terreno, quattro locali su c.a. 120,00 mq di superficie, oltre accessori e terrazzi.
- Piano Terzo: sottotetto, costituito da unico locale open space, con altezza al colmo di metri 3,00.
A corollario dell’intera proprietà troviamo un bellissimo giardino, completamente pianeggiante, di complessivi 650,00 mq.
I numerosi locali e la disposizione di essi permette la creazione di 5 appartamenti o di adibire l´intera struttura a residence. E´ possibile iniziare a ristrutturare il piano terra, per poi successivamente procedere con i piani superiori.
Adiacente alla proprietà, per chi necessitasse di ulteriore superficie, possibilità di acquisto di un ulteriore fabbricato terra-tetto, indipendente, costituito da due piani fuori terra di complessivi 92,00 mq, oltre area verde di c.a. 100,00 mq.
Quest’ultima proprietà si trova attualmente a rustico, sia il piano terreno che il primo, eventualmente collegabili anche con scala interna, sono composti da spazi aperti in open space, facilmente modulabili in base alle proprie esigenze. Il primo piano risulta essere facilmente soppalcabile, avendo un´altezza minima di 3,75 mt e una massima di 5,00 mt. Quest’ultimo fabbricato è stato oggetto di un profondo intervento di recupero che ha interessato il rifacimento completo del tetto e la realizzazione, a piano terreno, del vespaio areato con l’ausilio del sistema a “Igloo”.
Soluzione ideale anche come investimento con la possibilità di usufruire delle detrazioni – cd. Superbonus 110% - applicabile per ogni singolo appartamento.
Per non perderti anteprime e contenuti utili seguici anche sulla nostra pagina Facebook ´´Lisolago Immobiliare´´ e su Instagram digitando lisolago_immobiliare, ti aspettiamo!
Per maggiori informazioni visita il nostro sito internet www.immobiliarelisolago.it oppure contattaci per fissare un appuntamento senza impegno. Puoi chiamarci allo 0341.702013 o puoi venire a trovarci nel nostro ufficio di Mandello, via F.lli Pini Garibaldini n. 25, tutti i giorni dal lunedì al venerdì, dalle ore 09.00 alle ore 19.00, il sabato dalle ore 09.00 alle ore 12.00.
- PropostaOffro
- ContrattoVendita
- Prezzo260.000,00 €
- Vani14
- Numero piani3
- Mq totali532
- Camere7
- Bagni3
- Classe energeticaG
- Classe energetica (ipe)34687
- Classe energetica (unità di misura)Kwh/m²a
- CucinaCucina abitabile
- GiardinoPrivato
- Tipologia immobileCasa indipendente
- ProvinciaLecco
- ComuneMandello del lario
- Data18-08-2025 05:21:08
- CodiceEA-197CBE