Casa Indipendente 175mq

Dati annuncio : Vendita Casa Indipendente, La Maddalena
La casa affaccia direttamente sul suggestivo porticciolo di Cala Gavetta.
Con una superficie di 175 metri quadri commerciali ha un ingresso indipendente e si sviluppa su due piani arredati con cura e finiture di pregio.
Da ognuna delle sue finestre si può godere di una pittoresca vista sul porto e il mare circostante.
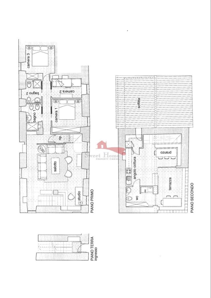
Dalla piazza di Cala Gavetta, attraverso una rampa di scale si accede al primo piano dove si è accolti da un ampio soggiorno con salotto ed una zona studio.
Allo stesso piano si trova la zona notte con tre camere: due camere matrimoniali, una camera doppia con letti a castello e due bagni finestrati con docce.
Il piano superiore è dedicato alla convivialità: la comoda cucina a vista completa di tutti gli elettrodomestici e con dispensa attigua serve le due zone pranzo.
All’interno un tavolo per otto persone e all’esterno, nella pittoresca terrazza sul porto, un tavolo da pranzo che può ospitare fino a quattordici persone e un angolo barbecue.
Dal terrazzo di 12 mq, si può godere della vista su Cala Gavetta, sull’isola di Santo Stefano, Palau e il famoso Capo d´Orso.
Completa l’abitazione un comodo ripostiglio al primo piano ed un bagno con lavanderia attiguo alla cucina.
L’ arredo ed ogni complemento sono stati scelti per restituire agli ambienti un’armonia ricercata e dal sapore marinaro.
La casa è dotata di impianto di aria condizionata canalizzata.
- PropostaOffro
- ContrattoVendita
- Prezzo1.100.000,00 €
- Numero piani2
- Mq totali175
- Camere3
- Bagni3
- Classe energeticaE
- Classe energetica (ipe)15821
- Classe energetica (unità di misura)Kwh/m²a
- CucinaCucina abitabile
- Tipologia immobileCasa indipendente
- ProvinciaSassari
- ComuneLa maddalena
- Data14-08-2025 06:00:41
- CodiceEA-E86FF0