Casa Indipendente 65mq
120.000,00 €

0 Piace
0 Piace
Dati annuncio : Vendita Casa Indipendente, Chioggia
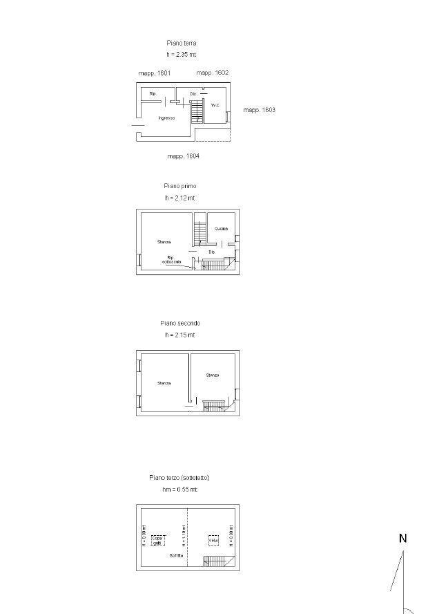
Rif. 2238 Chioggia centro storico Calle Doro, vendesi casetta indipendente suddivisa tra piano terra primo secondo. Attualmente suddivisa tra piano terra con ingresso, cantina e bagno; piano primo con cucinotto e soggiorno; piano secondo con due camere e accesso a soffitta sottotetto. L´ immobile è stato locato fino a poco tempo fa e risulta quindi abitabile con un piccolo intervento di ristrutturazione. Si trova in Calle Doro a pochi passi dal centro storico e dalla riva del Canal Vena e del Canal San Domenico, Ottima soluzione indipendente come casa vacanza! Disponibile da subito.
Piano terra: Ingresso , cantina, bagno
Piano primo: cucinotto , soggiorno
Piano secondo: due camere
Piano terzo: sottotetto
- PropostaOffro
- ContrattoVendita
- Prezzo120.000,00 €
- Mq totali65
- Camere2
- Bagni1
- Classe energeticaG
- Classe energetica (ipe)62937
- Classe energetica (unità di misura)Kwh/m²a
- CucinaAngolo cottura
- Tipologia immobileCasa indipendente
- ProvinciaVenezia
- ComuneChioggia
- Data09-09-2025 06:05:55
- CodiceEA-6EF6FD