Casa Indipendente 7 vani 220mq
125.000,00 €

0 Piace
0 Piace
Dati annuncio : Vendita Casa Indipendente, Ragusa
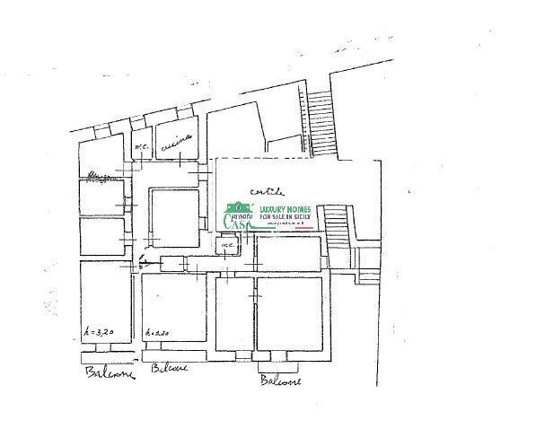
La Pronto Casa vende nei pressi di Piazza Fonti, soluzione indipendente di mq 220 circa con ampio cortile. L´ immobile presenta su strada un garage di pertinenza di mq 30 circa con soppalco e da una scalinata adiacente si scende raggiungendo il cortile d´accesso all´immobile che si sviluppa su un unico piano. Il cespite è attualmente composto da due unità abitative con rispettivo ingresso indipendente ma internamente comunicanti; la prima unità è composta da angolo cottura, soggiorno, tre camere da letto e servizio, la seconda unità da angolo cottura, due camere, ripostiglio e servizio. Nessun riscaldamento. Per maggiori informazioni contattare lo 0932/257603 o visitare il nostro sito
- PropostaOffro
- ContrattoVendita
- Prezzo125.000,00 €
- Vani7
- Mq totali220
- Camere6
- Bagni2
- Classe energeticaG
- CucinaCucina semi abitabile
- Tipologia immobileCasa indipendente
- ProvinciaRagusa
- ComuneRagusa
- Data18-08-2025 05:21:08
- CodiceEA-646BF1