Casa indipendente 70mq
145.000,00 €

0 Piace
0 Piace
Dati annuncio : Vendita Casa indipendente, Gambassi Terme
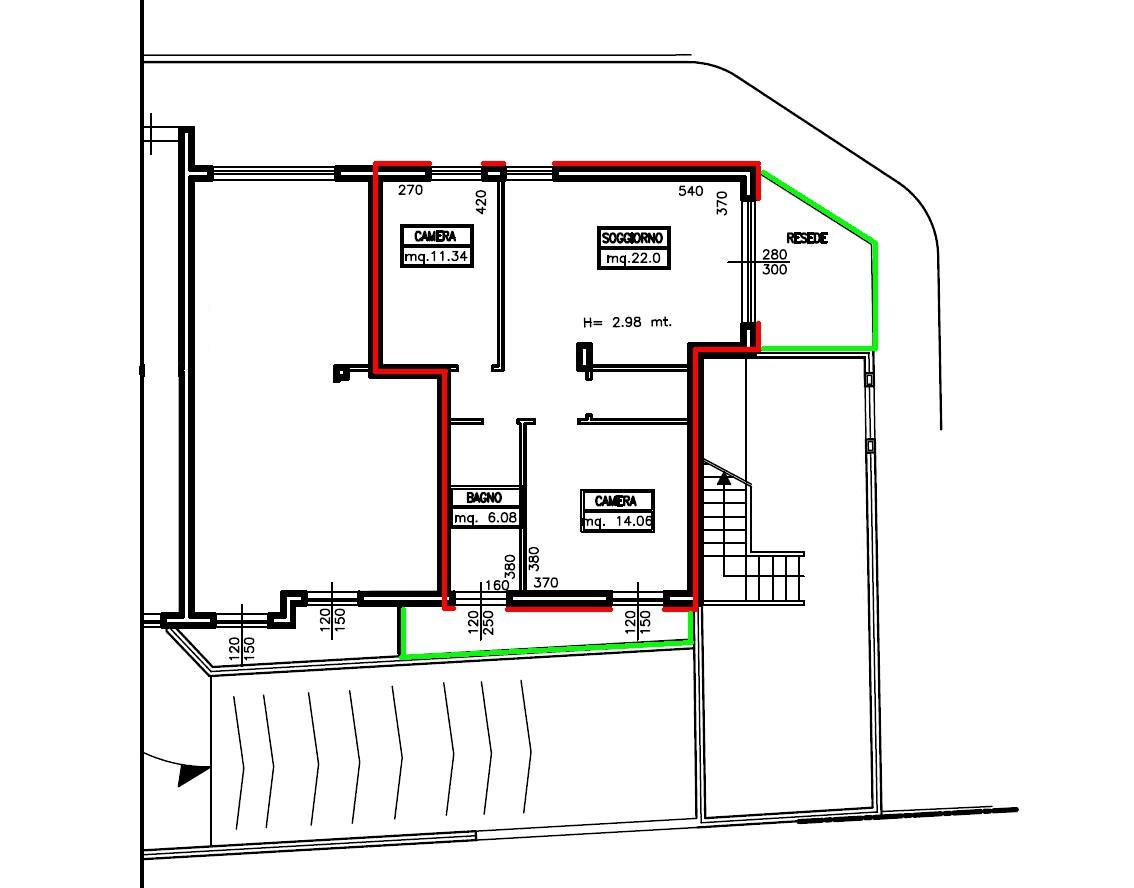
Appartamento 3 Vani nuova realizzazione, ubicato al piano terra con ingresso indipendente. L´abitazione è così composta: accesso dal resede privato, soggiorno-cucina, disimpegno, 2 camere di cui una con balcone, bagno con finestra, ripostiglio. Utenze indipendenti, impianto termoidraulico a metano, senza spese di condominio. E´ possibile realizzare una suddivisione degli ambienti diversa rispetto all´attuale disposizione di progetto e si possono effettuare finiture interne personalizzate. Ubicato in ottima zona residenziale tranquilla e panoramica, a pochi passi dal centro del paese. - SC9457379
- PropostaOffro
- ContrattoVendita
- Prezzo145.000,00 €
- PianoT
- Mq totali70
- Bagni1
- Balconi1
- StatoNuovo
- AscensoreNo
- CucinaAngolo cottura
- CantinaNo
- RiscaldamentoAutonomo
- ArrediNo
- Cadenza spese condominialiAnnuali
- ProvinciaFirenze
- ComuneGambassi terme
- Data14-09-2025 05:15:18
- CodiceEA-FBEA03

Agenzia immobiliare il borgo
Via Vittorio Veneto - Gambassi Terme