Casa Indipendente quadrilocale 100mq

Dati annuncio : Vendita Casa Indipendente, Calice al Cornoviglio
-Rif.5233- nel cuore di Madrignano un piccolo borgo nel Comune di Calice al Cornoviglio, proponiamo caratteristica terratetto indipendente del 1900.
Situato precisamente al Castello di Madrignano, la cui distanza è di 5 minuti circa dal centro di Ceparana e di 25 minuti circa da La Spezia.
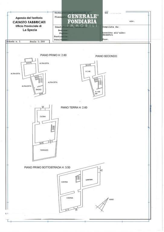
L´abitazione, di 100 mq circa totali, è disposta su tre livelli: al piano primo l´ingresso accogliente da sulla spaziosa cucina dotata di camino ed il soggiorno con accesso alla terrazza con vista sul borgo e sulla campagna circostante, che offre una fonte infinita di ispirazione e una connessione continua con la natura.
Al piano superiore troviamo un disimpegno con la prima camera e il servizio finestrato. All´ultimo piano, seconda camera mansardata con piccola area relax e ripostiglio lungo il sottotetto.
La proprietà include anche due cantine finestrate in sasso.
Questa soluzione in pietra con spessi muri che conservano il fresco d´estate e il calore d´inverno è una testimonianza della storia e della tradizione del luogo.
L´abitazione non dispone di un parcheggio di proprietà, ma vi è la possibilità di parcheggiare nella Piazza a pochissimi metri.
L´indirizzo sull´annuncio è approssimativo. Per visionare l´immobile contattateci al 0187939990 3456023380 saremo lieti di fissare un appuntamento. Generale Fondiaria Immobili, Ceparana Via Italia 34/36.
- PropostaOffro
- ContrattoVendita
- Prezzo38.000,00 €
- Vani4
- Mq totali100
- Camere2
- Bagni1
- Classe energeticaG
- CucinaCucina a vista
- Tipologia immobileCasa indipendente
- ProvinciaLa spezia
- ComuneCalice al cornoviglio
- Data08-08-2025 05:55:50
- CodiceEA-14E31F