Casa Indipendente quadrilocale 147mq

Dati annuncio : Vendita Casa Indipendente, Varenna
Varenna. In posizione dominante, con fantastica vista sul lago e sulle montagne, caratteristica soluzione immobiliare indipendente di quattro locali più servizi con annessa area esterna di proprietà.
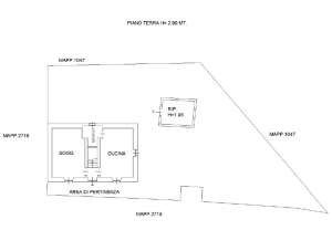
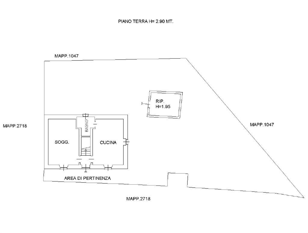
La proprietà, che fu ai tempi una casa cantoniera delle ferrovie, si sviluppa su due piani abitativi fuori terra. Piano terreno con ingresso su disimpegno, spaziosa zona giorno, cucina abitabile separata, bagno finestrato con doccia. Piano primo zona notte dove trovano spazio tre camere da letto di generose dimensioni.
L’immobile, in perfette condizioni abitative stante la recente ristrutturazione, è dotato, tra l’altro, di:
• Vespaio areato per tutto il piano terreno,
• Cappotto termico sul prospetto nord, nord/ovest,
• Infissi a taglio termico, basso – emissivo, in pvc con sistemata vasistas,
• Bagno e impianti nuovi,
• Caldaia a gasolio per riscaldamento e produzione acqua calda;
Posti auto esterni per una comoda accessibilità all’immobile.
Un’ottima soluzione per chi è alla ricerca di un immobile indipendente, caratterizzato da ampi spazi interni ed esterni, una vista mozzafiato sul lago, a un prezzo contenuto.
Per non perderti anteprime e contenuti utili seguici anche sulla nostra pagina Facebook ´´Lisolago Servizi Immobiliari´´ e su Instagram digitando lisolago_immobiliare, ti aspettiamo!
Per maggiori informazioni visita il nostro sito internet www.immobiliarelisolago.it oppure contattaci per fissare un appuntamento senza impegno. Puoi chiamarci allo 0341.702013 o puoi venire a trovarci nel nostro ufficio di Mandello, via F.lli Pini Garibaldini n. 25, tutti i giorni dal lunedì al venerdì, dalle ore 09.00 alle ore 19.00, il sabato dalle ore 09.00 alle ore 12.00.
- PropostaOffro
- ContrattoVendita
- Prezzo235.000,00 €
- Vani4
- Numero piani2
- Mq totali147
- Camere3
- Bagni1
- Classe energeticaG
- Classe energetica (ipe)31253
- Classe energetica (unità di misura)Kwh/m²a
- CucinaCucina abitabile
- GiardinoPrivato
- Tipologia immobileCasa indipendente
- ProvinciaLecco
- ComuneVarenna
- Data23-09-2025 05:21:07
- CodiceEA-DBC161