Casa Semindipendente quadrilocale 133mq

Dati annuncio : Vendita Casa Semindipendente, Abbadia Lariana
Abbadia Lariana, località CREBBIO, porzione di casa terra tetto di NUOVA ristrutturazione a rustico.
La proprietà si posiziona all’interno del caratteristico nucleo storico di Crebbio, direttamente sul tracciato del viandante, cuore di tutti i percorsi naturalistici del Lario orientale. I suoi elementi caratteristici sono la totale indipendenza, assenza di spese condominiali e spazi comuni, e dalla pluralità di locali interni che la rendono appetibile anche come investimento per un B&B o casa vacanza.
L’immobile si sviluppa su tre livelli ed è presente la predisposizione per l’installazione, all’occorrenza, di un ascensore, soluzione interessante per l’abbattimento delle barriere architettoniche.
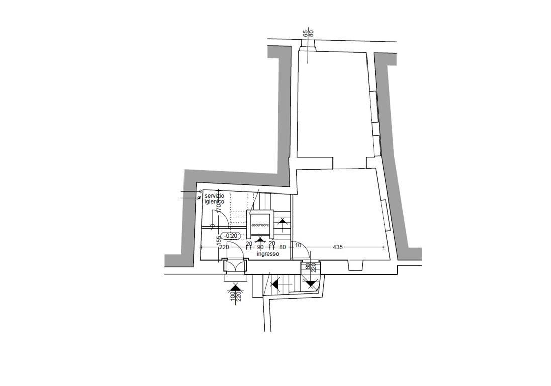
A piano terreno, ingresso, due ampi locali di cui uno con camino, terzo vano predisposto per l’installazione del primo bagno.
Piano primo, ampio locale open space, vano ulteriore per la realizzazione del secondo servizio.
Piano secondo, locale open space con accesso esterno al terrazzo vista lago, terzo vano per il servizio, pregevole soppalco ideale per la realizzazione di una terza camera o di un living/studio
L’immobile risulta essere completamente rifinito sotto il profilo strutturale e di finitura esterna con l’impiego di materiali di pregio ed elementi tecnologici per la massima efficienza energetica. È presente:
- cappotto esterno,
- infissi tutti a tagli termico,
- tetto coibentato interamente costituito da nobile di larice.
Internamente invece risulta essere ancora a rustico così da avere la possibilità di personalizzare non solo le finiture – pavimenti, rivestimenti etc. – ma anche la partizione e la destinazione d’uso dei locali interni.
Una soluzione affascinante, all’interno di uno dei nuclei storici più interessanti del panorama lariano.
Per non perderti anteprime e contenuti utili seguici anche sulla nostra pagina Facebook ´´Lisolago Servizi Immobiliari´´ e su Instagram digitando lisolago_immobiliare, ti aspettiamo!
Per maggiori informazioni visita il nostro sito internet www.immobiliarelisolago.it oppure contattaci per fissare un appuntamento senza impegno. Puoi chiamarci allo 0341.702013 o puoi venire a trovarci nel nostro ufficio di Mandello, via F.lli Pini Garibaldini n. 25, tutti i giorni dal lunedì al venerdì, dalle ore 09.00 alle ore 19.00, il sabato dalle ore 09.00 alle ore 12.00.
- PropostaOffro
- ContrattoVendita
- Prezzo135.000,00 €
- Vani4
- Mq totali133
- Camere2
- Bagni3
- Classe energeticaG
- Classe energetica (ipe)29882
- Classe energetica (unità di misura)Kwh/m²a
- CucinaCucina abitabile
- PanoramaVista lago
- Tipologia immobileCasa semindipendente
- ProvinciaLecco
- ComuneAbbadia lariana
- Data18-08-2025 05:21:08
- CodiceEA-28A557