CENTRO 8 vani 180mq

Dati annuncio : Vendita Multivani, Viareggio
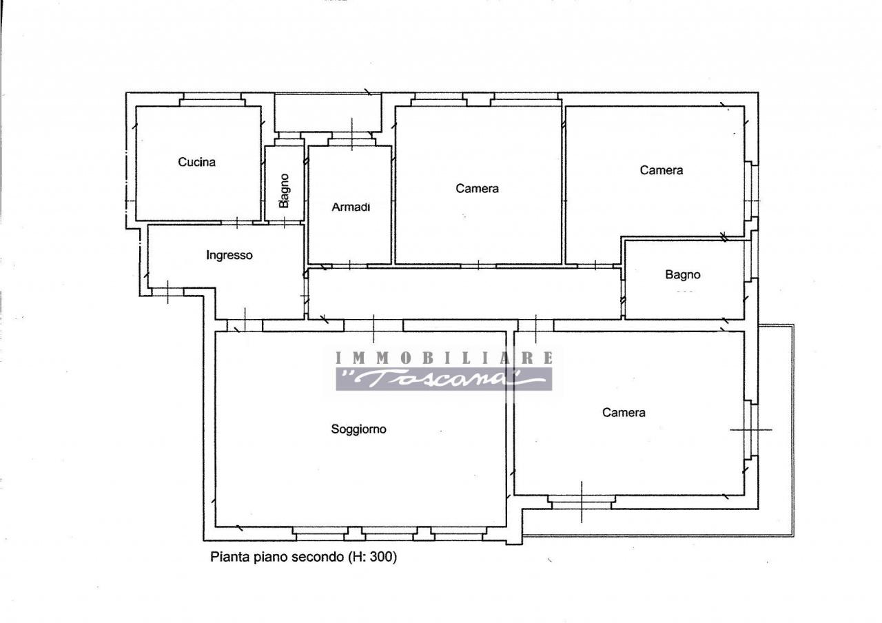
Viareggio zona Marco Polo, vendesi appartamento posto al secondo piano senza ascensore, composto da: ingresso, salone, cucina, 3 camere matrimoniali, 1 cameretta, 2 bagni. Balconi. Terrazza condominiale con stanza uso ripostiglio di proprietà. Posto bici. Completamente da ristrutturare.
L´appartamento è molto grande, 180 mq circa, con stanze ampie e soffitti alti.
Vicinissimo alla pineta, a soli 500 mt circa dalla passeggiata a mare.
Molto luminosa e ariosa, questa abitazione ha un ottima esposizione perche´ libera su tre lati con affacci a Est-Sud-Ovest.
Il condominio è ben abitato e posizionato in una zona vicino alla pineta di ponente e a tutti i servizi principali come farmacia, alimentari, scuole e supermercati.
Chiamaci per un appuntamento, saremo lieti di accompagnarti per una visita.
Tel. 3387705705
Agenzia Immobiliare Toscana
via A. Fratti, 412
Viareggio (LU).
Chiamaci per un sopralluogo al tre tre otto sette sette zero cinque sette zero cinque
Ti Aspettiamo !!!
L´indirizzo dell´immobile e la posizione sulla mappa sono un ausilio nell´individuazione della zona rispettando la privacy dei venditori.
Classe Energetica: G - IPE: 0.00kWh/mq anno
- PropostaOffro
- ContrattoVendita
- Prezzo380.000,00 €
- Vani8
- Numero piani3
- Piano255
- Mq totali180
- Camere3
- Bagni2
- Classe energeticaG
- StatoAbitabile
- Tipo costruzioneResidenziale
- CucinaAbitabile
- TerrazzoNo
- GiardinoNessuno
- CantinaNo
- RiscaldamentoAutonomo
- ArrediNon arredato
- BoxNessuno
- ProvinciaLucca
- ComuneViareggio
- Data30-08-2025 05:37:35
- CodiceEA-F3C7B2