CENTRO bilocale 65mq

Dati annuncio : Vendita Bivani, Viareggio
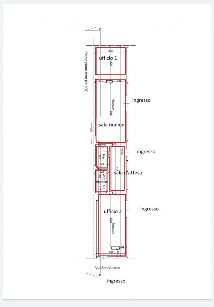
Viareggio centro, via Sant´Andrea n. 184, locale commerciale di 60 mq circa , con n. 1 bagno (disabili), n. 1 spogliatoio con doccia. Numero 4 ingressi. Possibilità di utilizzo di numero 2 stanze separate con ognuna un ingresso privato, oltre ad un piccolo spazio comune da poter adibire a sala d´ attesa.
Il fondo commerciale è stato completamente ristrutturato con impianti a norma e bagno disabili.
Gli infissi esterni, saranno montati tutti nuovi e certificati.
Il condominio di cui l´immobile in oggetto fa parte, verrà completamente riqualificato.
Posizionato in pieno centro, è interessante da locare sia come ambulatori di fisioterapisti /negozio con magazzino/uffici di assicurazioni /centro estetico....
Agenzia immobiliare Toscana
via A. Fratti, 412 Viareggio (LU)
058431101 3387705705.
Chiamaci per un sopralluogo al tre tre otto sette sette zero cinque sette zero cinque
Ti Aspettiamo !!!
Classe Energetica: - - IPE: 0.00kWh/mq anno
- PropostaOffro
- ContrattoVendita
- Prezzo110.000,00 €
- Vani2
- Piano1
- Mq totali65
- Bagni1
- StatoNuovo
- Tipo costruzioneCommerciale
- TerrazzoNo
- GiardinoNessuno
- RiscaldamentoAutonomo
- ArrediNon arredato
- BoxNessuno
- Spese condominiali100
- Cadenza spese condominialiMensili
- ProvinciaLucca
- ComuneViareggio
- Data09-05-2025 05:38:27
- CodiceEA-418E2B