CENTRO CITTA´ trilocale 300mq

360.000,00 €
0 Piace
0 Piace

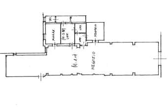
D7PM2913 - Nel centro della città su una delle vie principali vendesi fondo commercial di 250 MQ fronte strada composto da un ampio vano principale e zona ufficio composta da 5 vani con bagno. Possibilità istallazione della canna fumaria, pronta consegna.

  • PropostaOffro
  • ContrattoVendita
  • Prezzo360.000,00 €
  • Vani3
  • Piano1
  • Mq totali300
  • Bagni1
  • Posti auto1
  • StatoBuono
  • AscensoreNo
  • Tipo costruzioneCommerciale
  • TerrazzoNo
  • GiardinoNessuno
  • CantinaNo
  • RiscaldamentoAutonomo
  • ArrediArredato
  • BoxBox singolo
  • DisponibilitLibero
  • Spese condominiali15
  • Cadenza spese condominialiMensili
  • ProvinciaGrosseto
  • ComuneGrosseto
  • Data05-07-2025 05:50:34
  • CodiceEA-2EBCC8