Contrada San Michele 25 6 vani 169mq

310.000,00 €
0 Piace
0 Piace

Dati annuncio : Vendita Esavani, Cupra Marittima

Cupra Marittima - San Michele
Proponiamo in vendita villino bifamiliare con giardino privato, garage e rustico in bio edilizia di nuova costruzione.
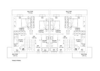
Il progetto originale prevede che l´abitazione sia composta da tre livelli così suddivisi:
Al piano seminterrato è presente l´ingresso al garage più rustico.
Al piano terra, ingresso su soggiorno con cucina a vista e bagno con box doccia e finestra, oltre un bellissimo giardino.
Al piano primo, due camera da letto matrimoniale, una cameretta studio, un bagno con box doccia, due balconi.


Tutti i piani sono collegati da scala interna e la divisione degli ambienti è personalizzabile a piacimento.
Si specifica che la costruzione sarà interamente in bio edilizia, ovvero presenterà struttura portante in cemento armato, tamponatura in canapa, tetto e solai in legno e risulterà energeticamente autosufficiente grazie all´installazione dell´impianto fotovoltaico (non è dunque previsto l´allaccio del gas).
La richiesta complessiva per il villino, incluso il costo del terreno edificabile e degli oneri tecnici e di urbanizzazione, è di Eu. 310.000.
Soluzione in zona ben collegata e immersa nel verde.
RIEPILOGO METRATURE: 64 MQ OGNI PIANO, GIARDINO 350 MQ

  • PropostaOffro
  • ContrattoVendita
  • Prezzo310.000,00 €
  • Vani6
  • Numero piani1
  • Mq totali169
  • Balconi2
  • Classe energetica (ipe)0.0
  • AscensoreNo
  • TerrazzoNo
  • GiardinoNs
  • CantinaNo
  • ProvinciaAscoli piceno
  • ComuneCupra marittima
  • IndirizzoContrada san michele 25
  • Data20-08-2025 05:13:04
  • CodiceEA-3C1F94
Centro servizi immobiliari
Via F.turati, 70 - San Benedetto Del Tronto