Fogliano trilocale 85mq
250.000,00 €

0 Piace
0 Piace
Dati annuncio : Vendita Trivani, Siena
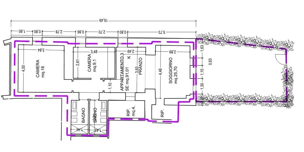
Vendesi in porzione di casolare appartamento di mq. 85 circa al piano terra completamente ristrutturato con riscaldamento a pavimento ed aria climatizzata, composto di: ingresso indipendente da giardino privato di mq. 60 circa, soggiorno con angolo cottura, due camere, ripostiglio e due bagni; oltre mq. 200 circa di terreno distaccato dall´abitazione. In attesa di certificazione energetica. Ristrutturato.
Per informazioni 338-9609508 333-3050378
- PropostaOffro
- ContrattoVendita
- Prezzo250.000,00 €
- Vani3
- Mq giardino60
- Mq totali85
- Camere2
- Bagni2
- Tipo costruzioneResidenziale
- RiscaldamentoAutonomo
- ProvinciaSiena
- ComuneSiena
- IndirizzoFogliano
- Data23-08-2025 05:56:31
- CodiceEA-797A57