Immobile Commerciale trilocale 168mq
1.200,00 €

0 Piace
0 Piace
Dati annuncio : Affitto Immobile Commerciale, Ragusa
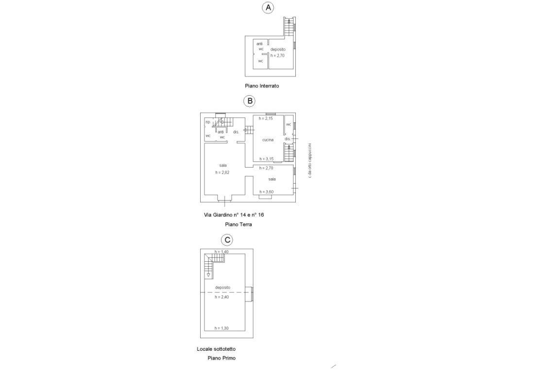
La Pronto Casa Group propone in locazione nella suggestiva Ragusa Ibla, a pochi passi dai giardini Iblei, immobile commerciale di mq 168 circa.
Il cespite si presta ad attività di ristorazione ed è sito in una zona ad alta densità turistica.
CARATTERISTICHE PRINCIPALI:
L´immobile si sviluppa interamente al piano terra ed è composto da:
- tre sale
- tre servizi
- cucina abitabile.
Completa la struttura il cortile interno di mq 60 circa, di esclusiva pertinenza, all´interno del quale è possibile organizzare lo spazio riservandolo a vari tavoli.
Per ulteriori informazioni contattare lo 0932257603 o visitare il nostro sito.
- PropostaOffro
- ContrattoAffitto
- Prezzo1.200,00 €
- Vani3
- Mq totali168
- Camere3
- Bagni3
- Classe energeticaB
- Classe energetica (ipe)763
- Classe energetica (unità di misura)Kwh/m²a
- CucinaCucina abitabile
- GiardinoPrivato
- Tipologia immobileImmobile commerciale
- ProvinciaRagusa
- ComuneRagusa
- Data07-10-2025 06:23:02
- CodiceEA-522175











