Industriale Via Gioacchino Rossini 7 monolocale 1098mq
300.000,00 €
0 Piace
0 Piace
Dati annuncio : Vendita Industriale, Sissa Trecasali
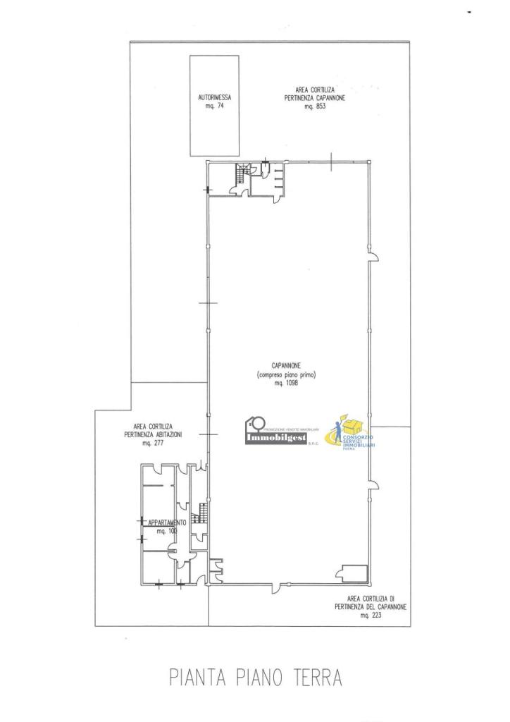
CAPANNONE ARTIGIANALE Di 1000 MQ.IDEALE INVESTIMENTO rendita pari al 12% lordo del prezzo richiesto vendiamo a Viarolo, pochi km dalla città con ottimi collegamenti stradali. Il capannone è di circa 1.100 mq compresi gli uffici al primo piano di circa 60 mq, area cortilizia di 1076 mq., garage di 74 mq. Due portoni per accesso mezzi di grandi dimensioni con altezza 4,50 metri e larghezza intorno ai 5 metri. Altezza capannone 6 metri sotto la trave. Tetto rivestito in alluminio ondulato. Scadenza contratto di locazione in corso a luglio 2026. Gli impianti sono a norma certificati.Per info tel. Molino 335-8486205 IMMOBILGEST SNC in Parma Strada Della Repubblica 83
- PropostaOffro
- ContrattoVendita
- Prezzo300.000,00 €
- Anno1980
- Vani1
- Numero piani1
- Mq totali1098
- Bagni3
- Classe energeticaD
- Classe energetica (ipe)254.59
- StatoDiscreto
- AscensoreNo
- TerrazzoNo
- GiardinoNs
- CantinaNo
- Tipologia immobileIndustriale
- ProvinciaParma
- ComuneSissa trecasali
- IndirizzoVia gioacchino rossini 7
- Data18-06-2025 05:50:59
- CodiceEA-B284E9

Immobilgest snc di feher istvan e molino filippo
Via Repubblica, 83 - Parma