INGRESSO INDIPENDENTE VIA DI CARCHERI 1 CARCHERI quadrilocale 85mq

Dati annuncio : Vendita INGRESSO INDIPENDENTE, Lastra a Signa
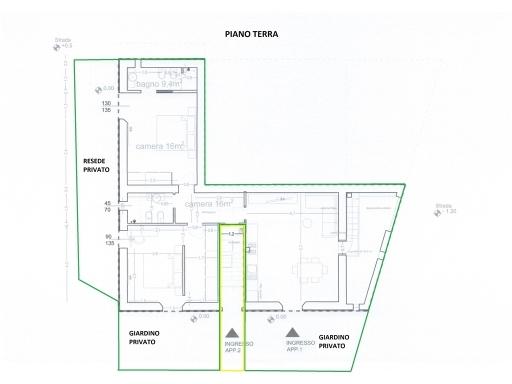
SIAMO NEL COMUNE DI LASTRA A SIGNA, LOCALITA´ CARCHERI, PROPONIAMO APPARTAMENTO IN TERRATETTO COMPOSTO DA 2 UNITA´ E LIBERO SU 3 LATI, DI 4 VANI PER 85 MQ. NETTI OLTRE ACCESSORI. L´APPARTAMENTO E´ POSTO AL PIANO TERRENO CON INGRESSO INDIPENDENTE DA PICCOLO RESEDE PRIVATO DI 16 MQ., SOGGIORNO CON ANGOLO COTTURA E ACCESO AL LOCALE AD USO CANTINA/TAVERNA DI 13MQ, 2 CAMERE MATRIMONIALI E DOPPI SERVIZI. L´IMMOBILE E´ IN CORSO DI RISTRUTTURAZIONE E VERRA´ CONSEGNATO FINITO. SONO PRESENTI CAPPPOTTO TERMICO, INFISSI NUOVI IN PVC, RISCLADAMENTO A PANNELLI RADIANTI CON RAFFREDDAMENTO, TETTO ISOLATO. POSSIBILITA´ DI INSTALLAZIONE IMPIANTO FOTOVOLTAICO. NO SPESE CONDOMINIALI. LA COMPRAVENDITA DI QUESTO IMMOBILE VERRA´ EFFETTUATA CON UNA FORMULA TIPO RENT TO BUY. DISPONIBILE APPARTAMENTO AL PIANO PRIMO, STESSA METRATURA CON AMPIO TERRAZZO. - CLASSE ENERGETICA IN ELABORAZIONE RIF. 1/0392 - (agg. 13/10/2025)
- PropostaOffro
- ContrattoVendita
- Prezzo250.000,00 €
- Anno2025
- Vani4
- Mq totali85
- Bagni2
- Classe energeticaA2
- GiardinoSi
- Tipologia immobileIngresso indipendente
- ProvinciaFirenze
- ComuneLastra a signa
- IndirizzoVia di carcheri 1
- Data11-10-2025 05:59:26
- CodiceEA-4520A1