Locale commerciale 1000mq

10.000,00 €
0 Piace
0 Piace

Dati annuncio : Affitto Locale commerciale, Lucca

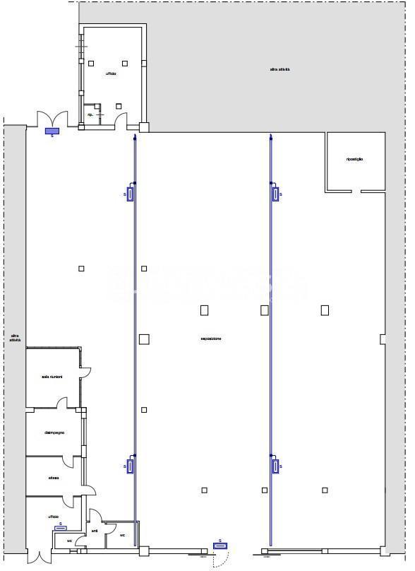
Rif.Ag. F008K - F008K - LUCCA S.CONCORDIO - inserito in vivace contesto commerciale collocato a pochi metri dall´ingresso autostradale Vi proponiamo in affitto, un ampio fondo commerciale di complessivi mq. 1000. E´ composto da un unico vano all´interno del qule sono stati realizzati tre locali attualmente adibiti a ufficio e sala riunioni e due servizi igienici . Il tutto è stato oggetto di totale ristrutturazioe del nel 2011- Gli impianti sono a norma,gli uffici sono provvisti di impianto di riscaldamento e raffrescamento tramite pompa di calore. il grande parcheggio esterno di oltre 3000 mq. a servizio anche delle unità confinanti, completa questa proprietà. Il canone è soggetto ad I.V.A. Edificio di classe G, indice di prestazione energetica globale 160,00 kWh/m2 anno. - SC8866747

  • PropostaOffro
  • ContrattoAffitto
  • Prezzo10.000,00 €
  • Numero piani2
  • PianoT
  • Mq totali1000
  • Classe energetica (ipe)160 kwh/m2
  • StatoOttimo
  • AscensoreNo
  • CantinaNo
  • ArrediNo
  • Cadenza spese condominialiAnnuali
  • ProvinciaLucca
  • ComuneLucca
  • Data18-08-2025 06:08:45
  • CodiceEA-ADEF18