Locale commerciale 160mq

1.600,00 €
0 Piace
0 Piace

Dati annuncio : Affitto Locale commerciale, Capannori

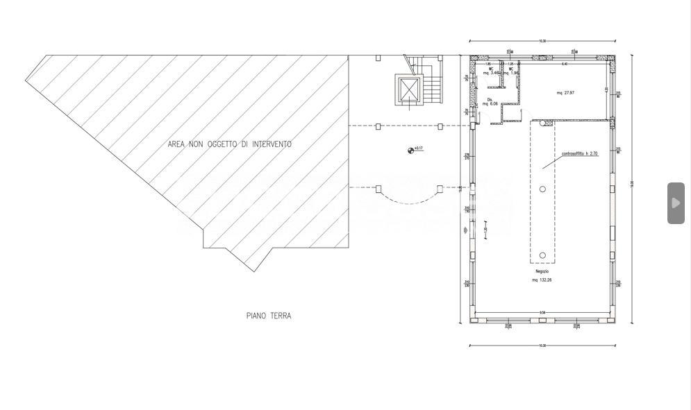
Rif.Ag. F417K - F417K - CAPANNORI zona commeciale - in n fabbricato di recente costruzione Vi proponiamo in affitto porzione di ampio fondo commeciale con ttre vetrine su tre lati e su e su strada - E´ compsto da unico vano open space di mq. 160 oltre servizio - E´ dotato di riscaldamento e raffreddamento indipendenti tramite split a parete - Esternamente la zona circostante gode di grandissimo parcheggio - Non ci sono al momento spese condominiali - Per motivi di riservatezza, la geolocalizzazione dell´immobile indica la zona in particolare, ma non l´indirizzo esatto dell´immobile. NO ATTIVITA´ DI FOOD E/O SOMMINISTRAZIONI Classe Energetica E - Kwh/mq annuo 123, 45- - Al canone va aggiunta l´iva. - SC9156551

  • PropostaOffro
  • ContrattoAffitto
  • Prezzo1.600,00 €
  • Numero piani3
  • PianoT
  • Mq totali160
  • Bagni1
  • Classe energetica (ipe)110 kwh/m2
  • StatoOttimo
  • AscensoreNo
  • CantinaNo
  • ArrediNo
  • Cadenza spese condominialiAnnuali
  • ProvinciaLucca
  • ComuneCapannori
  • Data18-08-2025 06:08:45
  • CodiceEA-77A575