Locale commerciale 350mq

550.000,00 €
0 Piace
0 Piace

Dati annuncio : Vendita Locale commerciale, Lucca

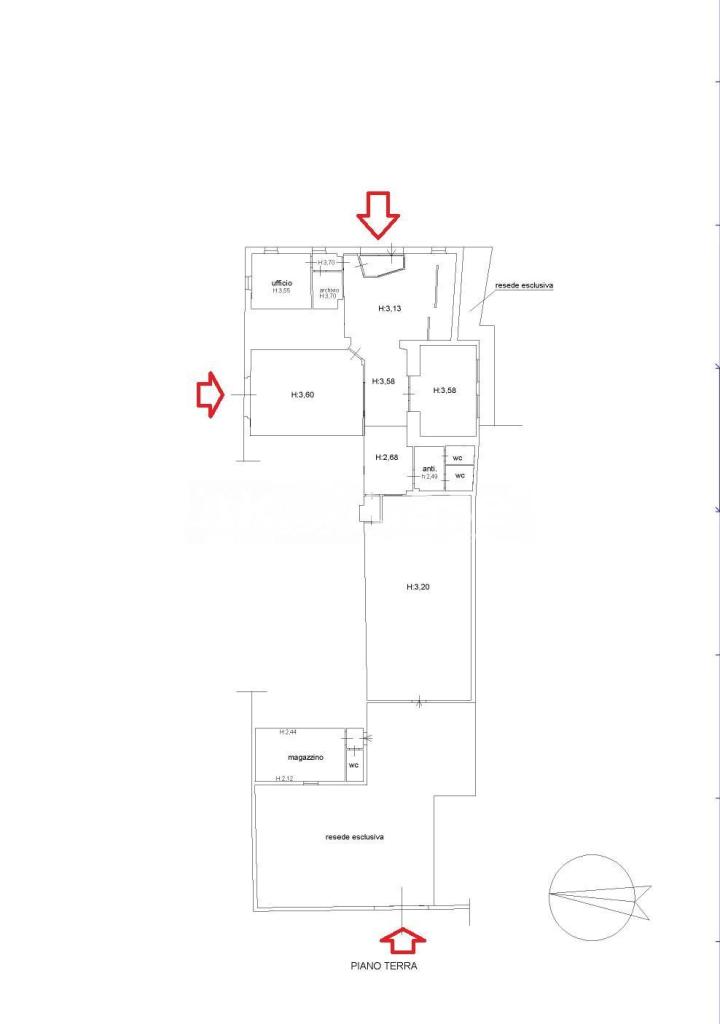
Rif.Ag. N203J - N203J CENTRO STORICO FRONTE MURA Ti propongo in vendita un ampio locale commerciale (categoria C/1) situato al piano terra di un piccolo fabbricato nel cuore del centro storico. Limmobile, come rappresentato nella planimetria allegata, è composto da diversi vani e si distingue per una splendido giardino esclusivo, un vero e proprio plus raro da trovare in zona centrale, anch´esso con comodo accesso indipendente. La configurazione del locale, con tre accessi, offre molteplici possibilità di utilizzo, tra cui, previo le dovute verifiche comunali la trasformazione ( se possibile) in una o più unità immobiliari, rendendolo ideale anche per progetti di investimento o residenziali. Limmobile ha una classe energetica G, con un indice di consumo di 123,45 kWh/mq allanno. La proprietà è visionabile su richiesta e si trova a pochi passi da comodi parcheggi, facilitando laccessibilità. - SC9443461

  • PropostaOffro
  • ContrattoVendita
  • Prezzo550.000,00 €
  • Numero piani2
  • PianoT
  • Mq totali350
  • Bagni2
  • Classe energetica (ipe)160 kwh/m2
  • StatoDa ristrutturare
  • AscensoreNo
  • Tipo costruzioneCommerciale
  • CantinaNo
  • ArrediNo
  • Cadenza spese condominialiAnnuali
  • ProvinciaLucca
  • ComuneLucca
  • Data10-08-2025 05:14:38
  • CodiceEA-E83DFA