monolocale 3400mq

450.000,00 €
0 Piace
0 Piace

Dati annuncio : Vendita Monovano, Santo Stefano di Magra

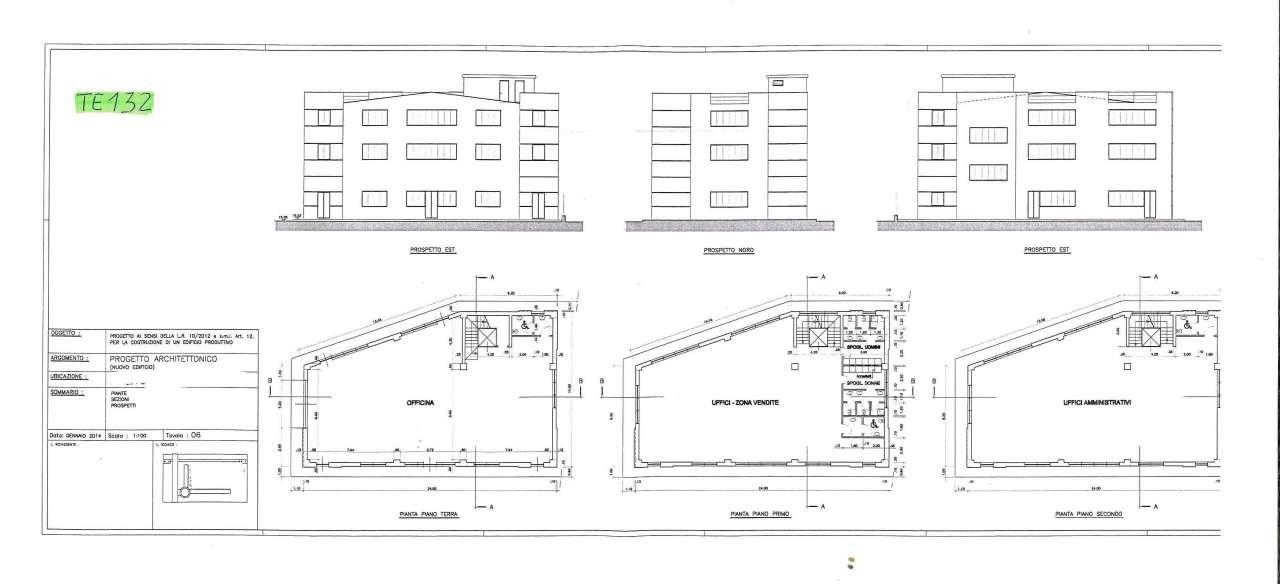
Terreno edificabile artigianale, commerciale e industriale a Santo Stefano. In vendita, vicino al centro commerciale La Fabbrica, a poche centinaia di metri dall´uscita autostradale di Santo Stefano Magra, terreno edificabile di circa 3150 mq, in fronte strada di transito pesante. Il terreno è già stato recintato, per il passaggio e la sosta di container e mezzi pesanti e consolidato adeguatamente con opere di scoticamento e inghiaiamento con stabilizzato. Il terreno in oggetto ha una portata di un carico di 100 tonnellate su sei ruote motrici. Cavidotto perimetrale e posizionamento basi per due torre fari già predisposto. Progetto approvato per edificare un capannone su tre piani per un totale di 900 mq.

  • PropostaOffro
  • ContrattoVendita
  • Prezzo450.000,00 €
  • Vani1
  • Numero piani1
  • Mq totali3400
  • Classe energeticaNa
  • Classe energetica (ipe)0.0
  • StatoBuono
  • AscensoreNo
  • TerrazzoNo
  • GiardinoNs
  • CantinaNo
  • ProvinciaLa spezia
  • ComuneSanto stefano di magra
  • Data18-08-2025 05:07:34
  • CodiceEA-7F4630