Monticiano quadrilocale 80mq
95.000,00 €

0 Piace
0 Piace
Dati annuncio : Vendita Quadrivani, Monticiano
Nel caratteristico borgo di Monticiano è collocata questa capanna indipendente su unico livello con 500 mq di giardino esclusivo. Possibilità di ulteriori 500 mq di giardino
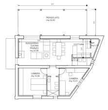
Sono 80 mq commerciali, 72 mq netti, e come da pianta dimostrativa sono divisibili tra soggiorno e zona cucina/pranzo, disimpegno, camera matrimoniale, camera singola e bagno. Una parte era stata già ristrutturata alcuni anni fa mentre l altra parte è tutt ora destinata a garage e cantina.
Necessita pertanto di un cambio d uso e di ristrutturazione.
Per informazioni 338 5495159
- PropostaOffro
- ContrattoVendita
- Prezzo95.000,00 €
- Vani4
- Mq giardino500
- Mq totali80
- Camere2
- Bagni1
- Tipo costruzioneResidenziale
- RiscaldamentoAutonomo
- BoxPosto auto
- ProvinciaSiena
- ComuneMonticiano
- IndirizzoMonticiano
- Data18-08-2025 06:03:15
- CodiceEA-0EC4CD