Negozio 100mq

Dati annuncio : Vendita Negozio, Piove di Sacco
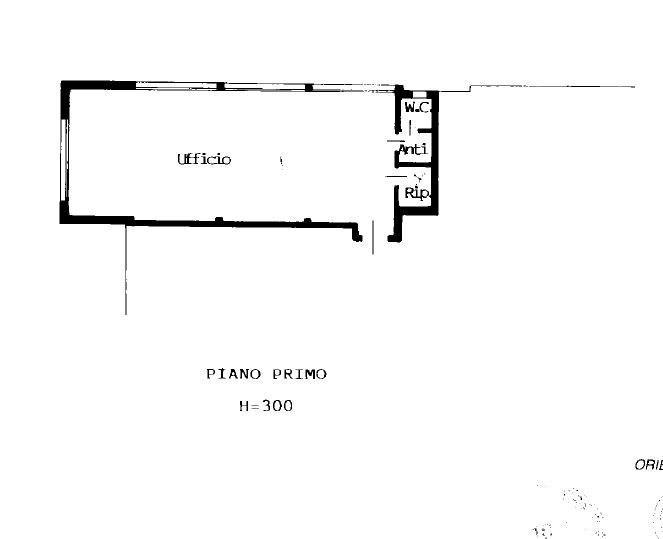
Rif.2313 Piove di Sacco, Via Piron, VENDESI UFFICIO di 100mq al piano primo . L´ immobile composto da un locale più servizi, fa parte di un complesso immobiliare a destinazione mista, con negozi e ristoranti al piano terra ed uffici al piano primo. Elegantemente rifinito ed arredato, è dotato di ampie vetrate, parquet in legno, Aria condizionata, riscaldamento ad aria e portoncino blindato . Le parti comuni quali portone di ingresso al piano terra e scala si presentano ben rifinite e servono solo tre unità, esternamente si accede attraverso un comodo porticato. In una zona facilmente raggiungibile da ogni direzione, si trovano un comodo parcheggio e a pochi metri altre strutture e negozi commerciali. L ´ufficio attualmente locato con una contratto con scadenza 2027, garantisce un´entrata mensile di 750 euro ....ottima soluzione anche per chi cerca come investimento da mettere a rendita. Prezzo 135.000 euro tratt.
- PropostaOffro
- ContrattoVendita
- Prezzo135.000,00 €
- Mq totali100
- Classe energeticaA4
- Classe energetica (ipe)48
- Classe energetica (unità di misura)Kwh/m²a
- ArrediArredato
- Tipologia immobileNegozio
- ProvinciaPadova
- ComunePiove di sacco
- Data09-09-2025 06:05:55
- CodiceEA-B2A659