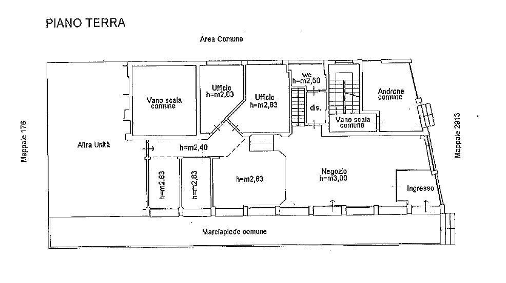
Negozio 5 vani 159mq

Dati annuncio : Vendita Negozio, Mandello del Lario
Mandello – CENTRALE – In posizione strategica, in zona di forte passaggio con sei vetrine fronte strada, negozio di complessivi mq 159,00 con annessi locali uso deposito a piano interrato, collegati internamente. La proprietà si compone di ingresso indipendente su locale open space, disimpegno, ulteriore vani modulabili utilizzabili anche come uffici e/o spazi espositivi, servizio finestrato.
Piano interrato ulteriori vani uso deposito.
L’immobile, in perfette condizioni è inserito all’interno di un contesto condominiale ben tenuto e dai costi di gestione minimi. Riscaldamento autonomo.
Per non perderti anteprime e contenuti utili seguici anche sulla nostra pagina Facebook ´´Lisolago Immobiliare´´ e su Instagram digitando lisolago_immobiliare, ti aspettiamo!
Per maggiori informazioni visita il nostro sito internet www.immobiliarelisolago.it oppure contattaci per fissare un appuntamento senza impegno. Puoi chiamarci allo 0341.702013 o puoi venire a trovarci nel nostro ufficio di Mandello, via F.lli Pini Garibaldini n. 25, tutti i giorni dal lunedì al venerdì, dalle ore 09.00 alle ore 19.00, il sabato dalle ore 09.00 alle ore 12.00.
- PropostaOffro
- ContrattoVendita
- Prezzo325.000,00 €
- Vani5
- Mq totali159
- Bagni1
- Classe energeticaG
- Classe energetica (ipe)29734
- Classe energetica (unità di misura)Kwh/m²a
- Tipologia immobileNegozio
- ProvinciaLecco
- ComuneMandello del lario
- Data10-07-2025 05:05:45
- CodiceEA-1858B8