Negozio 7 vani 220mq
6.000,00 €

0 Piace
0 Piace
Dati annuncio : Affitto Negozio, Milano
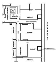
MILANO, ZONA DE ANGELI/RUBENS VIA REMBRANDT 2 - AFFITTASI NEGOZIO 5 LUCI 220 MQ OLTRE INTERRATO - Falco Immobiliare propone un ampio immobile in stabile signorile su via Rembrandt 2 , strada a grande passaggio pedonale e automobilistico con forte flusso di auto in entrata e uscita da Milano. La posizione è ottimamente servita, collocandosi a pochi passi dalle stazioni metropolitana Gambara , De Angeli , dai mezzi di terra e dalla circonvallazione. L´immobile si presenta con una superficie al pianterreno da 220 mq ca, oltre a un magazzino interrato per 150 mq ca. Completano l´offerta 2 box. AFFITTASI A 72.000 EURO ANNUI
- PropostaOffro
- ContrattoAffitto
- Prezzo6.000,00 €
- Vani7
- Mq totali220
- Bagni1
- Tipologia immobileNegozio
- ProvinciaMilano
- ComuneMilano
- Data08-10-2025 05:25:02
- CodiceEA-4233AC