Negozio 8 vani 142mq
215.000,00 €

0 Piace
0 Piace
Dati annuncio : Vendita Negozio, Palermo
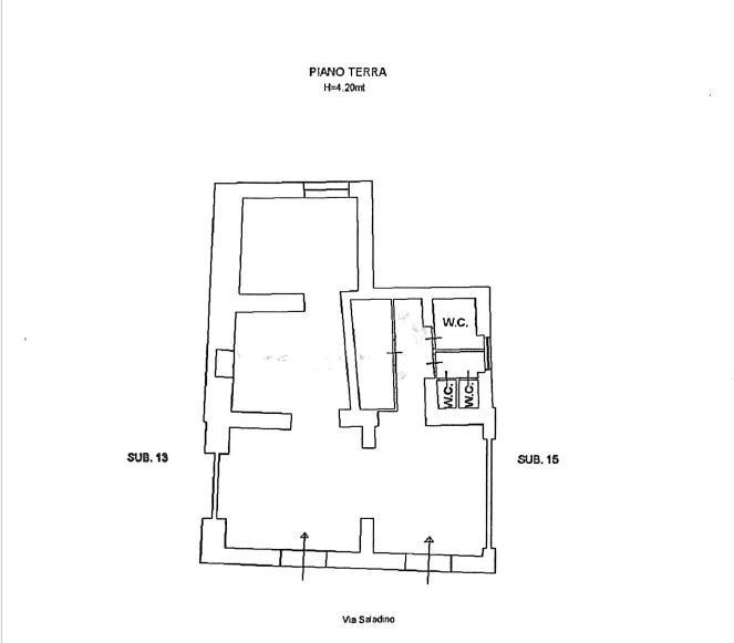
Situato nel cuore pulsante del centro storico di Palermo, a Piazza Santa Chiara, nel quartiere di Ballarò, ma fuori dal caos del mercato, proponiamo in vendita un locale commerciale esteso mq 142, in buono stato di manutenzione, composto da 4 stanze comunicanti, attualmente adibito a spazio coworking, e collegato ad un altro locale che si occupa di ristorazione e bar., 3 bagni attualmente locato. Ideale come investimento.
Per info e visite contattare Punto Casa di Claudio Costantino al numero 091 78 28 123 (anche tramite WhatsApp allo stesso numero).
- PropostaOffro
- ContrattoVendita
- Prezzo215.000,00 €
- Vani8
- Mq totali142
- Bagni3
- Classe energeticaG
- StatoBuono stato
- Tipo costruzioneCommerciale
- CucinaCucina semi abitabile
- Tipologia immobileNegozio
- ProvinciaPalermo
- ComunePalermo
- Data21-04-2025 05:55:56
- CodiceEA-F7C568