Negozio bilocale 50mq
3.333,00 €

0 Piace
0 Piace
Dati annuncio : Affitto Negozio, Milano
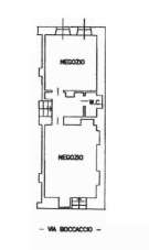
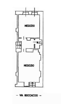
MM CADORNA - VIA BOCCACCIO - Proponiamo in affitto negozio di 2 locali con vetrina su strada di forte passaggio in elegante palazzo d´epoca con servizio di portineria tutto il giorno.
L´immobile è composto da due locali oltre servizi, si presenta in buone condizioni interne.
Libero subito. NO BUONA USCITA. Zona centralissima e di pregio tra la metropolitana di Conciliazione e Cadorna. A due passi da Corso Magenta, castello Sforzesco, zona Pagano, Corso Vercelli e Duomo.
Non è presente canna fumaria e non si presta ad attività legate al settore food.
- PropostaOffro
- ContrattoAffitto
- Prezzo3.333,00 €
- Vani2
- Mq totali50
- Camere2
- Bagni1
- Classe energeticaG
- Classe energetica (ipe)1366
- Classe energetica (unità di misura)Kwh/m²a
- Tipologia immobileNegozio
- ProvinciaMilano
- ComuneMilano
- Data18-10-2025 05:39:30
- CodiceEA-E4BD11