Negozio monolocale 80mq
50.000,00 €

0 Piace
0 Piace
Dati annuncio : Vendita Negozio, Vigevano
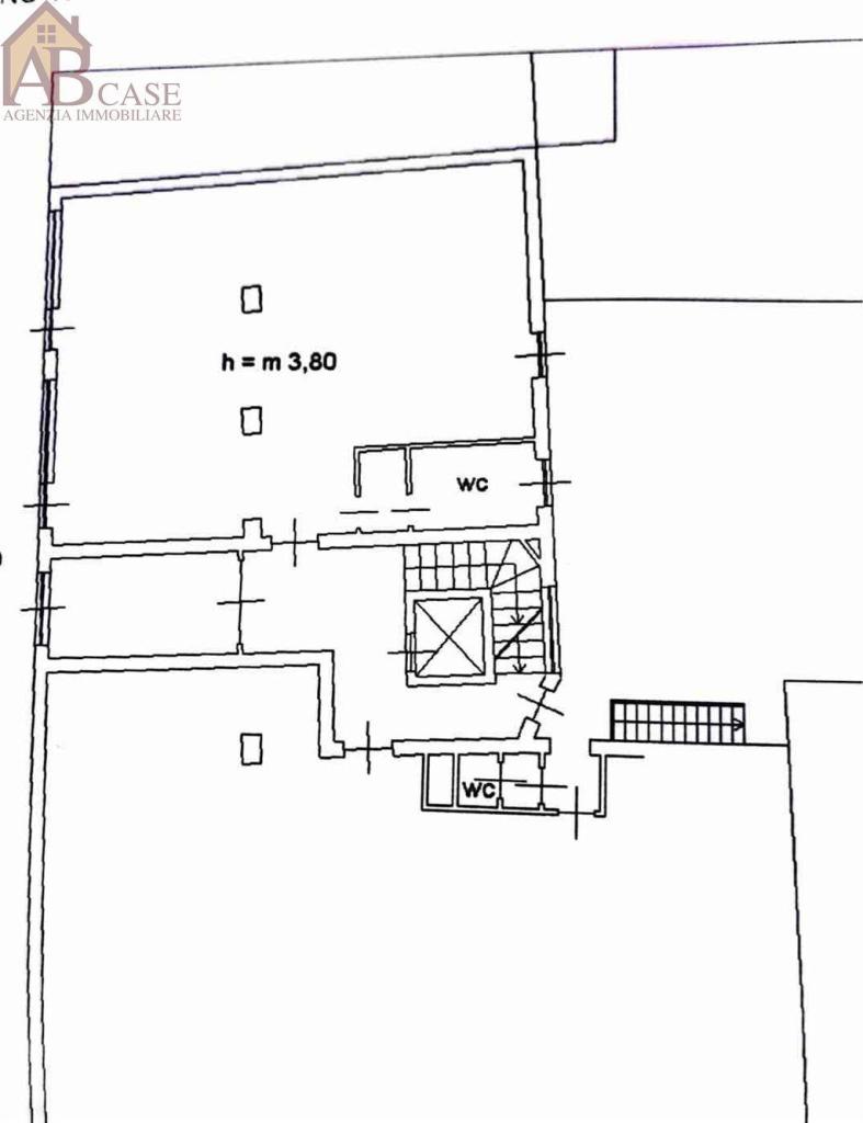
Negozio/ufficio open space,ben tenuto,con due vetrine , bagno, cantina ideale per attività di servizio, in zona con passaggi veicolare e pedonale, vicino a fermate autobus, e a pochi minuti da piazza ducale e stazione ferroviaria.
il locale è un open space di 80 mq. circa con annesso bagno servizio. Ideale anche per ufficio, terziario , studio medico , magazzino , deposito.
Vigevano dista circa 25 km. da Milano- Pavia e Novara.
- PropostaOffro
- ContrattoVendita
- Prezzo50.000,00 €
- Vani1
- Mq totali80
- Bagni1
- Tipologia immobileNegozio
- ProvinciaPavia
- ComuneVigevano
- Data05-10-2025 06:13:49
- CodiceEA-27352B