Negozio trilocale 250mq

2.300,00 €
0 Piace
0 Piace

Dati annuncio : Affitto Negozio, Ferrara

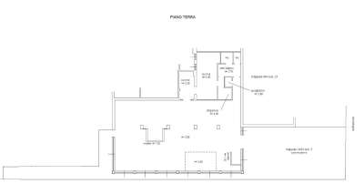
Negozio ad alta visibilit in affitto a Ferrara, via Bologna. Collocato interamente al piano terra e in posizione angolare, a met tra il centro e l´ Ipercoop il Castello, si propone in locazione un grande negozio di circa 250 m con cortile antistante e a ampie vetrine fronte strada. Internamente si compone di uno spazio facilmente adattabile al proprio lavoro con la sola presenza di alcune colonne. La zona servita da pista ciclabile e autobus, ed una delle arterie principali per l´entrata e l´uscita dalla citt. Si allega planimetria per la conformazione dell´interno. Potete contattarci senza impegno per maggiori informazioni o per prenotare un appuntamento per visionare questo Negozio ad alta visibilit in affitto a Ferrara, via Bologna. Cod 3937. ?. 2.300 mensili ed richiesta Fidejussione bancaria. - SC9431301

  • PropostaOffro
  • ContrattoAffitto
  • Prezzo2.300,00 €
  • Vani3
  • Numero piani3
  • PianoT
  • Mq giardino50
  • Mq totali250
  • Bagni2
  • Classe energeticaD
  • Classe energetica (ipe)389,82 kwh/m2
  • AscensoreNo
  • GiardinoPrivato
  • CantinaNo
  • RiscaldamentoAutonomo
  • ArrediNo
  • BoxNo
  • Cadenza spese condominialiAnnuali
  • ProvinciaFerrara
  • ComuneFerrara
  • Data17-07-2025 05:46:30
  • CodiceEA-11C269