Pachino 146mq
38.000,00 €

0 Piace
0 Piace
Dati annuncio : Vendita Loft, mansarde e attici, Pachino
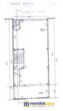
Lotto di terreno edificabile di mq. 146 con prospetto su strada e cortile. Nel lotto è stato già presentato un progetto ed è stato approvato per l´edificazione di un edificio per civile abitazione. Data la posizione il lotto si presta benissimo anche all´ edificazione di locali per attività commerciali/studi e/o uffici; infatti come si può vedere la planimetria del piano terra è destinata come locale commerciale, se non interessa, l´altra planimetria raffigura l´alternativa di realizzare un´appartamento.
- PropostaOffro
- ContrattoVendita
- Prezzo38.000,00 €
- Mq totali146
- Classe energeticaN.c.
- Tipo costruzione[residenziale, residenziale]
- ProvinciaSiracusa
- ComunePachino
- Data18-08-2025 05:16:01
- CodiceEA-5221AC