Palermo trilocale 77mq

Dati annuncio : Vendita Trivani, Palermo
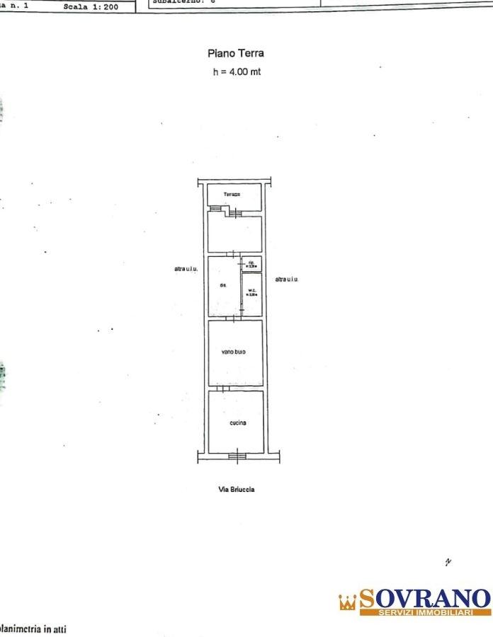
Zona: Ausonia / Strasburgo \n\nA Palermo, in una delle zone più richieste e signorili della città, tra Via Ausonia e Viale Strasburgo, proponiamo in vendita una residenza indipendente con terrazzino. Siamo in Via Briuccia, una strada tranquilla e ben collegata, immersa in un quartiere residenziale dove la qualità della vita si coniuga alla comodità dei servizi: scuole, attività commerciali, metropolitana e mezzi pubblici sono tutti raggiungibili in pochi minuti a piedi.\nL´immobile si sviluppa al piano terra per una superficie di circa 77 mq e si compone di un ingresso su cucina / soggiorno, due camere da letto, un bagno con doccia e un pratico ripostiglio.\nGli impianti sono stati completamente rifatti nel 2022, gli infissi in PVC garantiscono isolamento e comfort, mentre il riscaldamento autonomo consente una gestione efficiente degli spazi. I pavimenti alternano la solidità del marmo alla naturalezza del cotto, mentre i soffitti alti quattro metri conferiscono ampiezza e la possibilità di realizzare un soppalco, valorizzando ulteriormente la vivibilità della casa.\nUna soluzione ideale per chi cerca indipendenza e tranquillità senza rinunciare alla centralità e ai servizi della città.\n\nL´immobile è visionabile tutti i giorni previo appuntamento telefonico.\nPer maggiori informazioni contattare Agenzia Sovrano Immobiliare ai numeri Tel. 0916813749 / Cell. 3292650184\nemail: [email protected]\nHai bisogno di vendere il tuo immobile?\nRichiedi subito una consulenza GRATUITA immobiliare con il nostro esperto capace di valutare la tua casa e stimare il giusto prezzo di mercato. Contattaci Tel. 0916813749 / Cell. 3292650184 - Maggiori Dettagli: Cucina Abitabile
- PropostaOffro
- ContrattoVendita
- Prezzo79.000,00 €
- Vani3
- Mq totali77
- Camere2
- Bagni1
- Classe energeticaG
- StatoRistrutturato
- Tipo costruzione[residenziale, residenziale]
- RiscaldamentoAutonomo
- ProvinciaPalermo
- ComunePalermo
- Data03-10-2025 05:47:52
- CodiceEA-98316A