E' in corso la verifica sull'accuratezza dei dati del post
quadrilocale 95mq
245.000,00 €
0 Piace
0 Piace
Dati annuncio : Vendita Quadrivani, Albisola Superiore
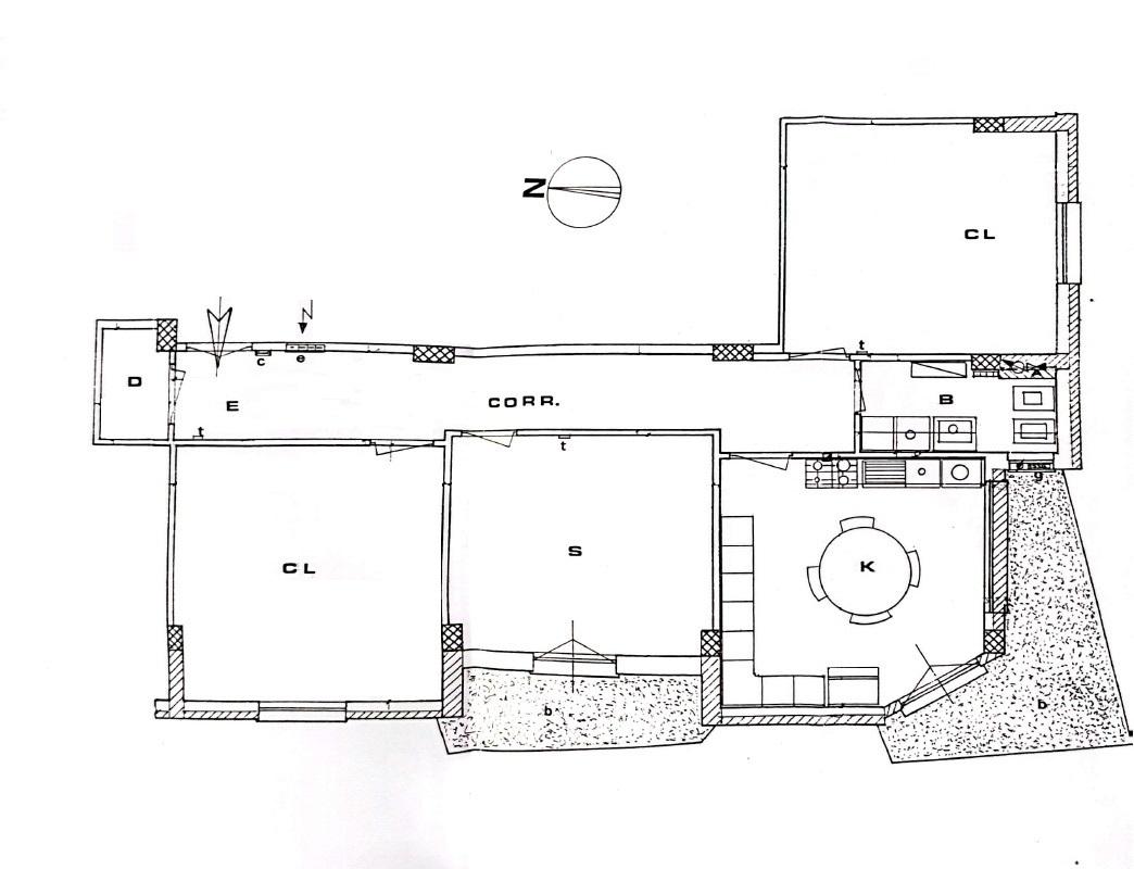
Appartamento Quadrilocale in buone condizioni in vendita ad Albisola Superiore in Corso Mazzini.
Vi proponiamo luminoso quadrilocale di circa 95 mq posto al primo piano, con ambienti luminosi e areati, con doppia esposizione a sud ed a ovest.
Composto da ingresso su ampio corridoio che conduce alle varie stanze: tre spaziose camere da letto, una cucina abitabile e il bagno finestrato di recente ristrutturazione dotato di ogni comfort.
Il riscaldamento è centralizzato a gas.
Completano la proprietà un piccolo terrazzo, un balcone e la cantina.
Per maggiori informazioni contattare Ginevra al 353.385.5820 presso Mondo Casa di Albisola Superiore, Via Turati 26.
- PropostaOffro
- ContrattoVendita
- Prezzo245.000,00 €
- Anno1965
- Vani4
- Numero piani1
- Mq totali95
- Camere3
- Bagni1
- Balconi1
- Classe energeticaG
- Classe energetica (ipe)0.0
- StatoBuono
- AscensoreNo
- CucinaAbitabile
- TerrazzoSi
- GiardinoNs
- CantinaSi
- Spese condominiali100.0
- ProvinciaSavona
- ComuneAlbisola superiore
- CodiceEA-819269