Rustico 650mq

Dati annuncio : Vendita Rustico, Castelfiorentino
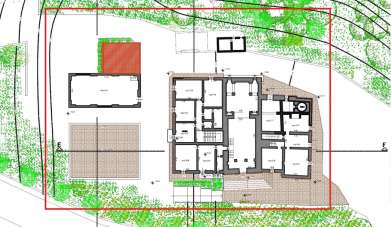
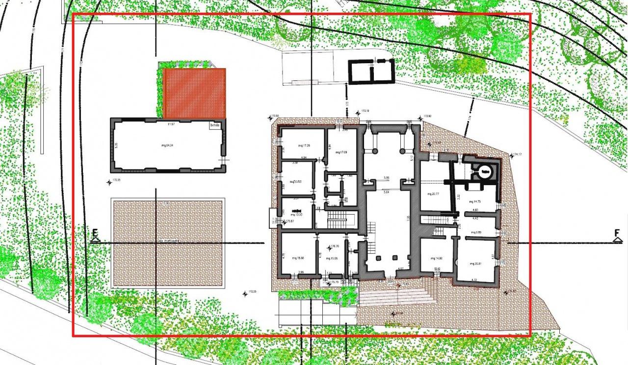
Complesso colonico da ristrutturare di mq 650 circa, con progetti approvati per la realizzazione di 6 abitazioni a destinazione residenziale o per struttura ricettiva. Allo stato attuale la proprietà è così strutturata: - Abitazione di 10 Vani disposta su due livelli (piano terreno e primo) oltre a cantina al piano seminterrato e resede esclusivo; - Appartamento di 5 Vani al piano terreno e primo, con accesso dal resede comune; - Magazzino (ex chiesa non più adibita al culto) con 2 locali e resede esclusivo; - Appartamento (ex canonica) di 2 vani, ubicato al primo piano e collegato internamente alla ex chiesa; - Cantina al piano terreno; - 2 Autorimesse al piano terreno di rispettivi mq 30 e 45 circa; Fa parte della proprietà un terreno agricolo di circa 4.500 mq, da adibire a giardini e parcheggio. Proprietà di facile accesso, a pochi Km da Montespertoli e da Empoli. - SC9107261
- PropostaOffro
- ContrattoVendita
- Prezzo576.000,00 €
- Numero piani2
- Mq giardino4500
- Mq totali650
- StatoDa ristrutturare
- AscensoreNo
- GiardinoPrivato
- CantinaSi
- ArrediNo
- Cadenza spese condominialiAnnuali
- ProvinciaFirenze
- ComuneCastelfiorentino
- Data18-08-2025 06:08:45
- CodiceEA-FAF925
