Rustico / Casale 10 vani 355mq
280.000,00 €

0 Piace
0 Piace
Dati annuncio : Vendita Rustico / Casale, Asciano
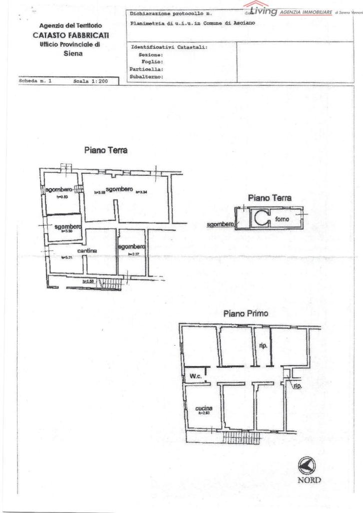
CRETE SENESI. Nel cuore delle Crete Senesi, porzione di casolare bifamiliare di mq. 355 disposto su due livelli e suddiviso in: abitazione principale di mq. 160, composta da ingresso, cucina con caminetto e stufa a pellet, soggiorno, quattro camere da letto, bagno finestrato e due ripostigli al piano primo, e locali accessori con taverna e cantina di mq. 190 al piano terra. Completano la proprietà due garage, vari magazzini e locali rimessa agricola per un totale di mq. 400 c.a staccati dalla proprietà. Ampio giardino circostante. In attesa di certificazione energetica. Richiede € 280.000,00 trattabili. Rif. V668
- PropostaOffro
- ContrattoVendita
- Prezzo280.000,00 €
- Vani10
- Mq totali355
- Camere4
- Bagni2
- CucinaCucina abitabile
- GiardinoPrivato
- Tipologia immobileRustico / casale
- ProvinciaSiena
- ComuneAsciano
- Data18-08-2025 05:21:08
- CodiceEA-6B8D23