Stabile 10 vani 6800mq

Dati annuncio : Vendita Stabile, Fonte Nuova
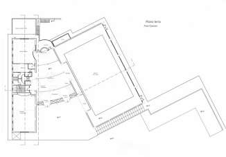
FONTE NUOVA - Loc. Tor Lupara - Traversa di via Gioberti - Proponiamo in vendita centro sportivo da terminare, sito su un lotto di 6.800 mq completamente recintato (muretto in cemento armato e grate elettrosaldate mod. keller). Una struttura innovativa che si sviluppa su 3 livelli con ascensore e dislocata in 2 complessi collegati al piano terra da un´ampia sala accoglienza con angolo bar/ristorazione e terrazza e dove troviamo anche 2 palestre corpo libero, uffici amministrativi e bagni. Al piano sotto strada è prevista una piscina 25 mq x 15,20 mq, spogliatoi bambini, ragazzi e adulti, infermeria e palestra preparatoria per nuoto, al piano 1° sono previste una grande palestra body building e 2 ampie sale per attività motorie e bagni. Per completare la struttura mancano il solaio piano terra e pilastri e solaio del piano primo con copertura legno lamellare. La strada di accesso alla piscina è già completa di tutte le urbanizzazioni primarie, con nulla osta acea per la fognatura, linea gas metano, linea elettrica e condotta acqua potabile. Pagata Bucalossi, licenza da rinnovare. Prezzo € 699.000 - Per ulteriori informazioni potete contattare la Bea Immobiliare allo 06/90018074 - 06/90018696 - 327/0411867 oppure [email protected]
- PropostaOffro
- ContrattoVendita
- Prezzo699.000,00 €
- Vani10
- Mq totali6800
- Camere10
- Bagni6
- AscensoreSi
- GiardinoPrivato
- Tipologia immobileStabile
- ProvinciaRoma
- ComuneFonte nuova
- Data24-07-2025 05:23:51
- CodiceEA-ABDBB3