STABILE 5 vani 358mq

180.000,00 €
0 Piace
0 Piace

FARRA DI SOLIGO (SOLIGO) - AH01 PRESTIGIOSO PALAZZO STORICO DELLA FINE DEL 700 CON GIARDINO

Proponiamo in vendita un palazzo di prestigio attualmente allo stato grezzo situato ai piedi delle colline.
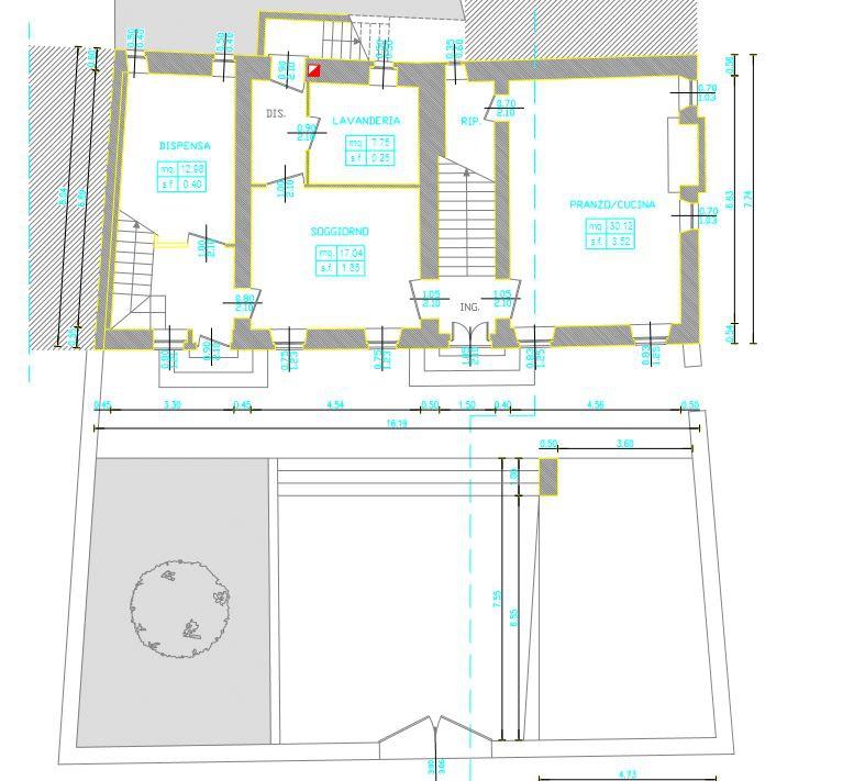
L´immobile si sviluppa su tre livelli ed e´ cosi composto: al piano terra cucina, soggiorno, dispensa, ripostiglio e lavanderia/bagno; al piano primo due camere, disbrigo e due bagni; al piano secondo ampio sottotetto.
Completa la proprieta´ il giardino di circa 364 mq e il posto auto.
L´immobile e´ di valenza storica ed e´ stato abitato da un famoso pittore del 700.
Da vedere!

Per informazioni 3427786327

Se sei interessato/a a questo immobile e vuoi fare una visita o avere maggiori informazioni, puoi contattarci via mail oppure chiamarci al numero 0438 1960226.
Nel rispetto della legge sulla privacy l´indirizzo riportato nell´annuncio è indicativo e non corrisponde all´esatta ubicazione dell´immobile.
Puoi visionare altre proposte immobiliari consultando direttamente il nostro sito www.lefimmobiliare.it oppure ti aspettiamo in agenzia.
La nostra sede si trova in Via Zanzotto n. 15 - Pieve di Soligo (TV)
Classe Energetica: G - IPE: 0.00kWh/mq anno

  • PropostaOffro
  • ContrattoVendita
  • Prezzo180.000,00 €
  • Vani5
  • Numero piani3
  • Piano13
  • Mq giardino364
  • Mq totali358
  • Camere3
  • Bagni2
  • Unità condominiali1
  • Classe energeticaG
  • StatoDa ristrutturare
  • AscensoreNo
  • Tipo costruzioneResidenziale
  • CucinaAbitabile
  • TerrazzoNo
  • GiardinoPrivato
  • CantinaNo
  • BoxPosto auto
  • DisponibilitLibero
  • Tipologia immobileStabile
  • ProvinciaTreviso
  • ComuneFarra di soligo
  • Data19-09-2025 05:29:26
  • CodiceEA-39753E