Strada Provinciale 231 107 monolocale 540mq

250.000,00 €
0 Piace
0 Piace

Dati annuncio : Vendita Monovano, Modugno

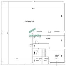
IN VENDITA – Capannone a Modugno (BA) nel Centro Economico Barese

Arcadia Immobiliare propone la vendita di un capannone industriale, in ottime condizioni d’uso, all’interno del Centro Economico Barese di Modugno e con accesso diretto dalla Strada Provinciale SP 231, arteria fondamentale per la logistica e per i collegamenti, della zona industriale dell’area metropolitana di Bari.

La struttura si sviluppa su una superficie coperta complessiva di circa 540 mq, di cui 310 mq per il capannone e 230 mq per gli uffici che sono organizzati su due livelli e comprendono i servizi igienici e gli spogliatoi.

Il capannone dotato di certificato di agibilità, si presta a molteplici utilizzi, garantendo funzionalità, rappresentanza e comfort operativo.
Il capannone situato in un complesso – ordinato, tranquillo e sorvegliato – è dotato di ampie aree condominiali che garantiscono il parcheggio dei mezzi, il carico/scarico e lo stoccaggio temporaneo delle merci.

Questo immobile rappresenta lo spazio ideale per aziende alla ricerca di una soluzione pronta all’uso, ben collegata e in una posizione strategica a pochi minuti da Bari.

Per valutare la proposta commerciale personalizzata sulle vostre esigenze, è possibile chiamare il numero di Arcadia Immobiliare +39.080.504.15.23 oppure prenotare una visita direttamente dal sito arcadiaimmobiliare.it

  • PropostaOffro
  • ContrattoVendita
  • Prezzo250.000,00 €
  • Anno1998
  • Vani1
  • Numero piani1
  • Mq totali540
  • Bagni2
  • Classe energeticaG
  • Classe energetica (ipe)48.0
  • StatoBuono
  • AscensoreNo
  • TerrazzoNo
  • GiardinoNs
  • CantinaNo
  • ProvinciaBari
  • ComuneModugno
  • IndirizzoStrada provinciale 231
  • Data13-05-2025 05:06:15
  • CodiceEA-7837D9