Terreno 9000mq

50.000,00 €
0 Piace
0 Piace

Dati annuncio : Vendita Terreno, Ostuni

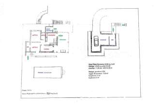
OSTUNI (PUGLIA): Terreno agricolo di 9000 mq.con uliveto secolare. Possibile edificazione di una villa di 4 vani con veranda e piscina (vedi bozza del progetto ipotizzato). Ubicata su SS16 tra Ostuni e Carovigno, a 3 km da Ostuni ed a pochi km dal mare di Torre Pozzella. Zona residenziale di campagna, in parte abitata tutto l’anno. Facile accesso da stradina asfaltata. Ottimo investimento per uso personale ed, anche, per attivita’ ricettiva turistica. - SC9050241

  • PropostaOffro
  • ContrattoVendita
  • Prezzo50.000,00 €
  • PianoT
  • Mq totali9000
  • Classe energeticaNs
  • StatoBuono
  • AscensoreNo
  • GiardinoPrivato
  • CantinaNo
  • ArrediNo
  • Spese condominiali50000
  • Cadenza spese condominialiAnnuali
  • ProvinciaBrindisi
  • ComuneOstuni
  • Data18-08-2025 06:08:45
  • CodiceEA-76D3BF