trilocale 70mq
550,00 €

0 Piace
0 Piace
Dati annuncio : Affitto Trivani, San Benedetto del Tronto
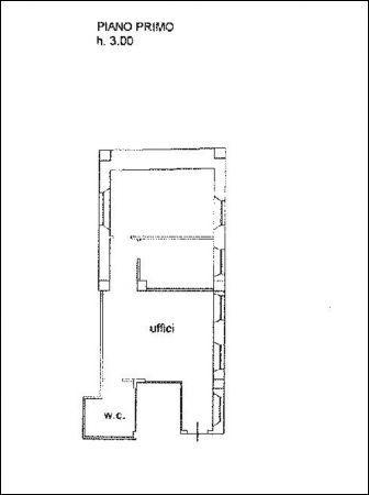
San Benedetto del Tronto - In zona centrale, a due passi dall´isola pedonale, affittasi ufficio di circa 60 mq, situato al secondo piano e composto da tre stanze più bagno.
- PropostaOffro
- ContrattoAffitto
- Prezzo550,00 €
- Vani3
- Mq totali70
- Bagni1
- Classe energeticaVa
- Classe energetica (ipe)0.0
- StatoBuono
- AscensoreNo
- TerrazzoNo
- GiardinoNs
- CantinaNo
- ProvinciaAscoli piceno
- ComuneSan benedetto del tronto
- Data12-10-2025 06:04:21
- CodiceEA-FA250E