trilocale 75mq

239.000,00 €
0 Piace
0 Piace

In un nuovo complesso residenziale in fase di costruzione, offriamo in vendita diverse soluzioni abitative che includono giardino o terrazzo, posto auto, cantine e o box.
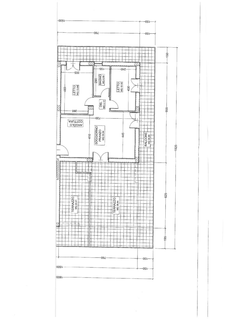
L´immobile in questione è un piano primo con soggiorno con ak , tre camere e due bagno, terrazzo di 80 mq, Posto auto.
Gli appartamenti sono realizzati con materiali di pregio e offrono la possibilità di personalizzazione per soddisfare al meglio le esigenze dei futuri proprietari. Inoltre, gli immobili sono in classe energetica A4, garantendo un elevato risparmio energetico e un comfort abitativo ottimale. Contattaci per maggiori informazioni e per scoprire tutte le opzioni disponibili. Inoltre, per facilitare il passaggio alla vostra nuova casa, offriamo la possibilità di permuta indiretta gratuita, accollo di mutuo e mutui green, se sei under 36 puoi finanziare anche l 100% del prezzo dell´immobile

  • PropostaOffro
  • ContrattoVendita
  • Prezzo239.000,00 €
  • Anno2025
  • Vani3
  • Numero piani1
  • Mq terrazzo80
  • Mq totali75
  • Camere2
  • Bagni1
  • Classe energeticaA+
  • Classe energetica (ipe)0.0
  • StatoIn costruzione
  • AscensoreSi
  • CucinaAngolo cottura
  • TerrazzoSi
  • GiardinoNs
  • CantinaNo
  • RiscaldamentoAutonomo
  • ProvinciaRoma
  • ComuneFonte nuova
  • CodiceEA-8A2267