trilocale 93mq

295.000,00 €
0 Piace
0 Piace

Dati annuncio : Vendita Trivani, San Benedetto del Tronto

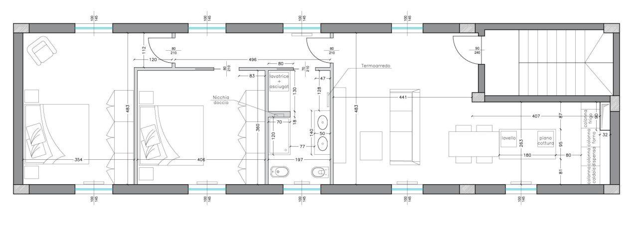
SAN BENEDETTO DEL TRONTO - In zona centralissima, a 50 metri dall´isola pedonale e al primo piano di una piccola palazzina sviluppata su tre livelli, con sole 3 unità abitative, vendesi appartamento di circa 93 mq, in fase di ristrutturazione; l´appartamento, si sviluppa su tutto il piano, e si compone di ingresso su soggiorno open space di 35 mq (con possibilità di separare il soggiorno dalla cucina), disimpegno, bagno con antibagno e due camere matrimoniali.
Viene venduto allo stato attuale con finiture da completare a scelta dell´acquirente.
Nessuna spesa condominiale.

  • PropostaOffro
  • ContrattoVendita
  • Prezzo295.000,00 €
  • Anno1988
  • Vani3
  • Mq totali93
  • Camere2
  • Bagni1
  • Classe energetica (ipe)0.0
  • StatoAl grezzo - da rifinire
  • AscensoreNo
  • TerrazzoNo
  • GiardinoNs
  • CantinaNo
  • ProvinciaAscoli piceno
  • ComuneSan benedetto del tronto
  • Data06-09-2025 05:37:16
  • CodiceEA-7225E1
Centro servizi immobiliari
Via F.turati, 70 - San Benedetto Del Tronto