Ufficio 5 vani 151mq
199.000,00 €

0 Piace
0 Piace
Dati annuncio : Vendita Ufficio, Asti
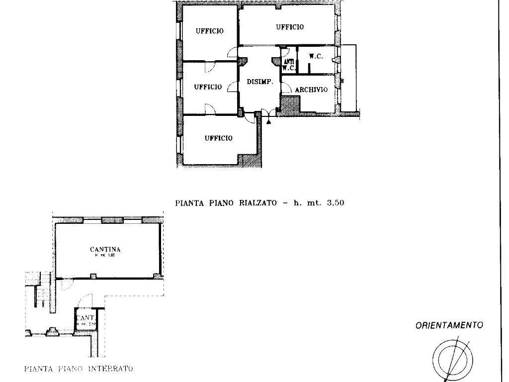
Corso Dante, tra Largo Martiri della Liberazione e Piazza Vittorio Veneto, in signorile palazzo dei primi del 900 si vende un ufficio semiarredato, attualmente locato, composto di ingresso su ampio disimpegno, ufficio direzionale, sala, sala riunioni, reception con ufficio operativo a più postazioni, cameretta, servizi e balconcino. In cortile comodo posto auto di proprietà. Al piano interrato ampia cantina.
- PropostaOffro
- ContrattoVendita
- Prezzo199.000,00 €
- Vani5
- Mq totali151
- Camere5
- Bagni1
- Classe energeticaD
- Classe energetica (ipe)5211
- Classe energetica (unità di misura)Kwh/m³a
- ArrediArredato
- Tipologia immobileUfficio
- ProvinciaAsti
- ComuneAsti
- Data18-08-2025 05:21:08
- CodiceEA-180C34