Ufficio 6 vani 120mq

Dati annuncio : Vendita Ufficio, Ragusa
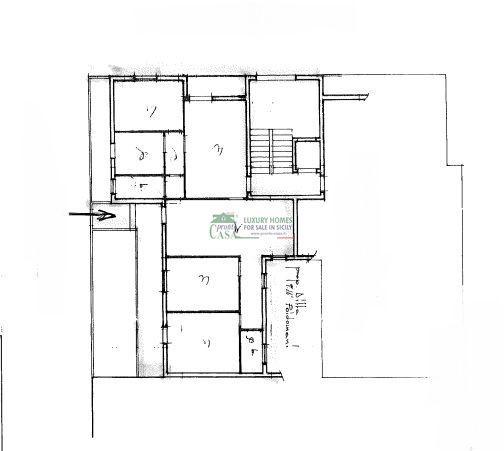
La Pronto Casa Group vende, ufficio al piano terra con triplo ingresso ed esposizione angolare, in zona ´Via Risorgimento´.
L’immobile di circa 170 mq è ideale per studi professionali, coworking o attività direzionali.
CARATTERISTICHE PRINCIPALI:
- Superficie generosa, suddivisa in sei vani funzionali e ben distribuiti;
- Triplo ingresso, perfetto per gestire accessi separati o creare più ambienti indipendenti;
- Due servizi;
- Balconi ed ottima visibilità.
PERTINENZE:
- Riscaldamento autonomo a metano
- Ambienti climatizzati
L´ufficio si presta a diverse soluzioni lavorative ed è perfetto per chi cerca uno spazio professionale strategicamente posizionato. Il prospetto esterno è in fase di rifacimento.
Per ulteriori info contattare l´ Agenzia 1 di Ragusa al numero 0932 257603 oppure visitare il nostro sito.
- PropostaOffro
- ContrattoVendita
- Prezzo59.000,00 €
- Vani6
- Mq totali120
- Camere5
- Bagni2
- Classe energeticaE
- CucinaCucina abitabile
- Tipologia immobileUfficio
- ProvinciaRagusa
- ComuneRagusa
- Data10-09-2025 06:00:14
- CodiceEA-014109