Ufficio monolocale 300mq
6.250,00 €

0 Piace
0 Piace
Dati annuncio : Affitto Ufficio, Milano
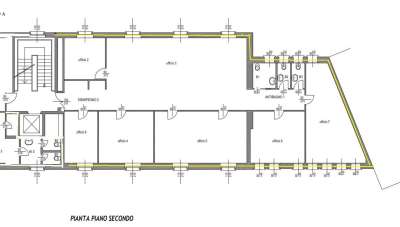
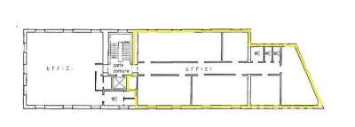
AD.ZE MM MACIACHINI - AFFITTASI UFFICIO DI 300 MQ ca. in Piazzale Maciachini 9 comodo per accesso a Milano e adiacente a Metropolitana Linea Gialla. Composto da corridoio centrale, ampio ufficio open space, sala riunione e n 4 uffici, triplo bagni.
Situato al 2° piano, in buono stato interno, possibilità posti auto e magazzino/archivio al piano interrato. IN AFFITTO A EURO 75.000 ANNUI OLTRE SPESE CONDOMINIALI.
- PropostaOffro
- ContrattoAffitto
- Prezzo6.250,00 €
- Vani1
- Mq totali300
- Bagni3
- StatoBuono stato
- Tipologia immobileUfficio
- ProvinciaMilano
- ComuneMilano
- Data09-10-2025 05:20:30
- CodiceEA-A8875E