vendita camigliano 30 vani 2200mq

-
0 Piace
0 Piace

Dati annuncio : Vendita vendita, Capannori

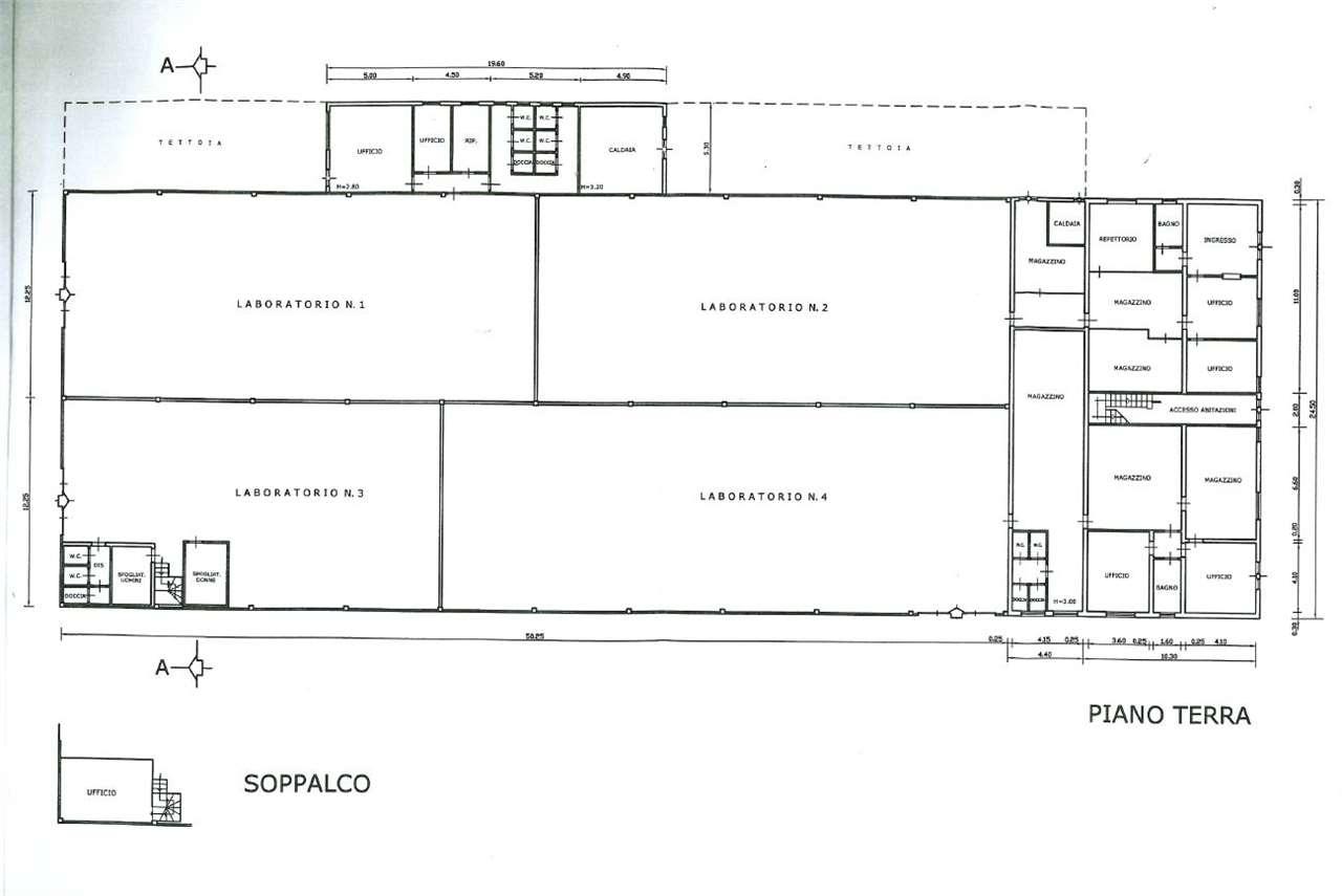
Capannone artigianale, per un totale di 1231 mq e altezza m.5.00, suddiviso in quattro vani ad uso laboratorio con servizi e uffici per un totale di 230 mq. Corredato da due appartamenti al primo piano composti da ingressi indipendenti, soggiorno, cucina abitabile, tre camere e bagno, tensostrutture e due tettoie. Il capannone è in buono stato di manutenzione.
Ci contatti per sapere il prezzo richiesto. [email protected]
CLASSE ENERGETICA: G 290 kWh/m2 a

  • PropostaOffro
  • ContrattoVendita
  • Prezzo-
  • Anno1999
  • Vani30
  • Numero piani2
  • Mq totali2200
  • Camere6
  • Bagni7
  • Posti auto50
  • Classe energeticaG
  • Classe energetica (ipe)290.0
  • StatoBuono
  • AscensoreNo
  • PortineriaNo
  • ProvinciaLucca
  • ComuneCapannori
  • IndirizzoCamigliano
  • Data11-10-2025 06:11:44
  • CodiceEA-FD0A11
Sist3ma.it
Via Delle Ville 493 - Capannori