vendita Largo San Giorgio 5 vani 120mq

350.000,00 €
0 Piace
0 Piace

Su nuovo quartiere alle porte del centro Paese in bella zona residenziale.
Progetto ideato con lo scopo di essere esteticamente bello, di qualità e funzionale.
In costruzione nuovi appartamenti su villino di 4 unità tutte indipendenti.
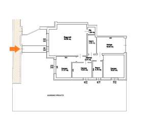
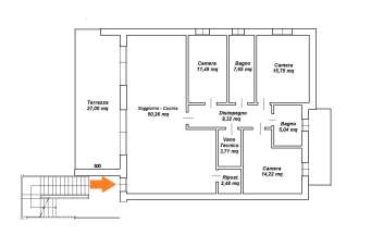
Al piano terra ti offriamo 2 appartamenti con ingresso autonomo e con meraviglioso giardino di pertinenza mentre al piano primo e ultimo proponiamo 2 stupendi appartamenti, con belle terrazze di circa 30 mq con un ottima profondità, con uno splendido piano mansardato e con il valore aggiunto di scala privata per te ed il tuo vicino. Oltre al garage al piano terra c´è anche posto privato per una seconda auto.
Progetto molto curato nei dettagli studiato con terrazze e giardini su lato soleggiato per sfruttare la zona all´aperto e anche per avere molta luminosità in tutte le stanze della casa.
Se stai cercando indipendenza questa è l´abitazione che cercavi!!!
Qui la puoi trovare con un team che segue tutta la fase di cantieristica, realizzazione, progettazione di interni e che ti seguirà con il supporto professionale per realizzare il tuo acquisto fino al rogito notarile.
Costruzione dal design moderno con colori caldi, progettato al fine di ottenere un risultato di qualità che puó soddisfare le tue esigenze.
Le abitazioni saranno consegnate in classe A4 con tutte le nuove tecnologie a basso consumo energetico e particolare attenzione è stata fatta all´indipendenza e all´acustica!!
Chiamaci per avere tutte le informazioni e dettagli in merito!! E ti porteremo in visione della zona!!
Finiture interne molto curate con possibilità di avere legno ovunque per dare omogeneità a tutto l´appartamento e adattarlo poi ai colori di rivestimenti con scelta del cliente per personalizzare la casa.
Visione Immobiliare l´agenzia che puó seguirti con serietà e disponibilità in ogni passo del tuo acquisto e anche della tua vendita.

Classe Energetica A4 EP Kwh/mq anno
Prezzo a partire da Euro 350.000,00
Nostro Rif. NK27

Se per acquistare questo immobile hai la necessità di vendere prima un altro immobile, non preoccuparti perché ce ne occuperemo noi, seguendoti passo a passo sia nella vendita che nel successivo acquisto.

Si precisa che l´indirizzo esposto in pubblicità, per indicare la zona in cui si trova l´immobile in vendita, è puramente indicativo, al fine di salvaguardare la privacy del proprietario.

Per maggiori informazioni tel. 041.58.01.435 - cell. 393.96.30.883 – Email: [email protected] - Sito: https://www.visioneimmobiliare.it


CLASSE ENERGETICA: 3,51 kWh/m2 a

Accessori:
Aria Condizionata, Cancello Elettrico, Doppi Vetri, Doppio Ingresso, Impianto Fotovoltaico, Ingresso Indipendente, Passaggio Automobilistico, Passaggio Pedonale, Porta Blindata, Ripostiglio, Video Citofono, Zanzariere

  • PropostaOffro
  • ContrattoVendita
  • Prezzo350.000,00 €
  • Anno2025
  • Vani5
  • Mq box15
  • Mq terrazzo30
  • Mq totali120
  • Camere3
  • Camere doppie2
  • Camere singole1
  • Bagni2
  • Terrazzi1
  • Posti auto1
  • Classe energeticaA4
  • Classe energetica (ipe)3.51
  • StatoProssima realizzazione
  • AscensoreNo
  • Tipo costruzioneSignorile
  • CucinaAngolo cottura
  • GiardinoPrivato
  • RiscaldamentoAutonomo
  • ArrediNon arredato
  • PanoramaVista aperta
  • AccessoriAria condizionata, cancello elettrico, doppi vetri, doppio ingresso, impianto fotovoltaico, ingresso indipendente, passaggio automobilistico, passaggio pedonale, porta blindata, ripostiglio, video citofono, zanzariere
  • PortineriaNo
  • BoxSi
  • ProvinciaVenezia
  • ComuneNoale
  • IndirizzoLargo san giorgio
  • Data18-08-2025 06:37:55
  • CodiceEA-A86B40