vendita quadrilocale 230mq
420.000,00 €

0 Piace
0 Piace
Dati annuncio : Vendita vendita, San Bonifacio
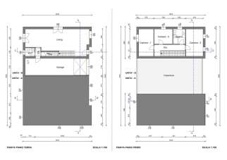
ULTIMA DISPOBILITA´ L´MMOBOLIARE ZDF propone in vendita a San Bonifacio località La Prova porzione di bifamiliare indipendente composta da ingresso, ampia zona giorno di mq 47 con possibilità di ricavare cucina e soggiorno separato, bagno, lavanderia e garage doppio al piano terra , al piano primo tre camere e un bagno. Il capitolato per ogni porzione di bifamiliare prevede i muri di ultima generazione ( o Isotex o blocco cassero in EPS con struttura armata , divisori interni in cartongesso ) serramenti in pvc bianchi , avvolgibili in alluminio , pavimenti in Gres porcellanato, impianto idro sanitario ad energia elettrica ( no gas ) impianto fotovoltaico . Classe Energetica A 4.
CLASSE ENERGETICA:
- PropostaOffro
- ContrattoVendita
- Prezzo420.000,00 €
- Anno2025
- Vani4
- Mq box40
- Mq totali230
- Camere3
- Camere doppie2
- Camere singole1
- Bagni2
- Classe energeticaA4
- StatoNuovo
- AscensoreNo
- Tipo costruzioneSignorile
- CucinaAngolo cottura
- GiardinoPrivato
- RiscaldamentoAutonomo
- ArrediNon arredato
- PortineriaNo
- Box40
- ProvinciaVerona
- ComuneSan bonifacio
- Data12-09-2025 05:43:36
- CodiceEA-4ACDA4