vendita trilocale 110mq

Dati annuncio : Vendita vendita, San Bonifacio
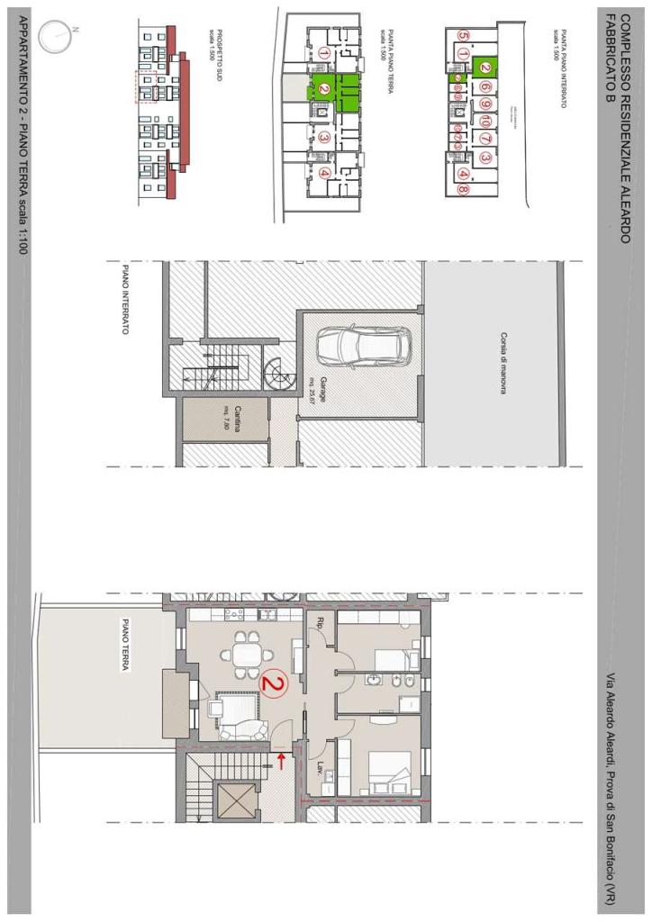
L´IMMOBILIARE ZDF propone in vendita il nuovo intervento a San Bonifacio località alla Prova.
Proponiamo all´interno del residence di sole dieci unità di ultima generazione in nuovo complesso di nuova costruzione disponibile appartamento composto da soggiorno-cottura, due camere , doppi servizi, ripostiglio, cantina,garage doppio, posto auto esterno e giardino esclusivo .
Le soluzioni abitative garantiscono le migliori performance antisismiche costruite, con una particolare attenzione al comfort acustico e la certificazione energetica in classe A4 , le unità verranno consegnate comprese di infissi tripla vetrocamera antisfondamento, tapparelle elettriche , pompa di calore ad alta efficienza energetica, riscaldamento a pavimento. CONSEGNA PREVISTA FINE 2025
CLASSE ENERGETICA:
Accessori:
Doppi Vetri, Impianto Fotovoltaico, Parco Condominiale, Passaggio Automobilistico, Passaggio Pedonale, Porta Blindata, Tapparelle Elettriche
- PropostaOffro
- ContrattoVendita
- Prezzo215.000,00 €
- Vani3
- Mq balconi5
- Mq totali110
- Camere2
- Camere doppie1
- Camere singole1
- Bagni2
- Balconi1
- Classe energeticaA4
- StatoIn costruzione
- AscensoreNo
- Tipo costruzioneSignorile
- CucinaAngolo cottura
- GiardinoPrivato
- RiscaldamentoAutonomo
- ArrediNon arredato
- AccessoriDoppi vetri, impianto fotovoltaico, parco condominiale, passaggio automobilistico, passaggio pedonale, porta blindata, tapparelle elettriche
- PortineriaNo
- BoxSi
- ProvinciaVerona
- ComuneSan bonifacio
- Data30-09-2025 06:04:02
- CodiceEA-9AE4EB