vendita via dei bocchi 8 vani 658mq

Dati annuncio : Vendita vendita, Capannori
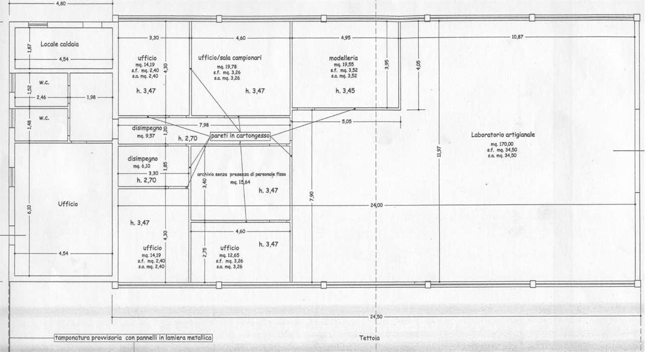
Nel comune di CAPANNORI a Segromigno, capannone artigianale in ottime condizioni di circa 450 mq diviso in grande vano ad uso laboratorio, zona uffici corredati da servizi igienici e ampia tettoia esterna a uso magazzino. A corredo piazzale esterno di circa 500 mq per carico e scarico merci e ampia tettoia esterna ad uso magazzino supplementare. Possibilità di cambiare la destinazione d´uso in residenziale creando piu´ unità abitative.
PER MOTIVI DI PRIVACY L´INDIRIZZO INDICATO NELL´ANNUNCIO NON CORRISPONDE ALLA REALE UBICAZIONE DELL´IMMOBILE.
CONTATTACI PER AVERE PIÙ DETTAGLI.
PUOI TROVARE TUTTE LE OFFERTE AGGIORNATE SUL NOSTRO SITO INTERNET: www.deimmobiliare.com
SEGUICI ANCHE SULLA NOSTRA PAGINA FACEBOOK Dei Immobiliare
D E I I M M O B I L I A R E - Via Pesciatina 173 Lunata (LU) TEL UFFICIO: 0583.920498 CELL. 329.3166782 - EMAIL: [email protected]
SELEZIONIAMO CON CURA GLI IMMOBILI PIU´ INTERESSANTI, NELLE VARIE ZONE DELLA PROVINCIA DI LUCCA.
CONTATTACI PER RICHIESTE E INFORMAZIONI AGGIUNTIVE.
CLASSE ENERGETICA: G 258,78 kWh/m2 a
Accessori:
Aria Condizionata, Doppio Ingresso, Ingresso Indipendente, Portineria/Custode, Rete Dati, Ripostiglio, Video Citofono
- PropostaOffro
- ContrattoVendita
- Prezzo350.000,00 €
- Vani8
- Mq totali658
- Posti auto10
- Classe energeticaG
- Classe energetica (ipe)258.78
- StatoOttimo
- AscensoreNo
- Tipo costruzioneMedio
- RiscaldamentoAutonomo
- PanoramaVista aperta
- AccessoriAria condizionata, doppio ingresso, ingresso indipendente, portineria/custode, rete dati, ripostiglio, video citofono
- PortineriaSi
- ProvinciaLucca
- ComuneCapannori
- IndirizzoVia dei bocchi
- Data18-08-2025 06:37:55
- CodiceEA-FA7170