vendita Via Lunga quadrilocale 129mq

310.000,00 €
0 Piace
0 Piace

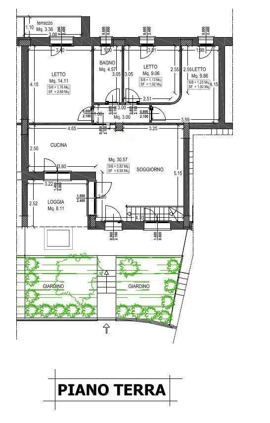
OSTERIA NUOVA PIANO TERRA 3 CAMERE NUOVO PREGETTO- RIF. MVR235 - In ottima posizione, a due passi da tutti i principali servizi, proponiamo in vendita appartamento di nuova e prossima realizzazione, posto al piano terra con ingresso indipendente.

L´appartamento sviluppa su un unico livello per circa 86 mq, ed è composto da ampio e luminoso soggiorno, con accesso diretto a loggia e al giardino privato, cucina, disimpegno, camera matrimoniale, altre 2 camere e bagno. L´appartamento è collegato direttamente tramite comoda scala in muratura al piano seminterrato di cira 59 mq, dove c´e´ la possibilità di ricavare bella taverna oltre ad ampio garage. Gli eventuali costi di creazione di altri ambienti, finiture, riscaldamento ecc.. non sono previste nel capitolato base.

Ottime le rifiniture presenti nel capitolato, completo di predisposizione per aria condizionata, predisposizione impianto d´allarme, impianto fotovoltaico per uso diretto, pompa di calore, riscaldamento a pavimento, tapparelle automatiche in alluminio, infissi in PVC con triplo vetro. Gli alloggi saranno realizzati in linea con le nuove leggi vigenti, per un ottimo vivere e bassissimi consumi energetici, possibilità di prenotazione e di personalizzazione delle divisione degli ambienti interni. EURO 310.000 TRATTABILI (Classe energetica: A1) Per motivi di privacy la via indicata e la mappa sui portali non corrispondono esattamente alla posizione dell´ immobile. RIF. MVR235

CLASSE ENERGETICA:

Accessori:
Antifurto, Aria Condizionata, Doppi Vetri, Impianto Fotovoltaico, Impianto Satellitare, Ingresso Indipendente, Lavanderia, Porta Blindata, Rete Dati, Ripostiglio, Zanzariere

  • PropostaOffro
  • ContrattoVendita
  • Prezzo310.000,00 €
  • Anno2025
  • Vani4
  • Mq box59
  • Mq giardino25
  • Mq terrazzo5
  • Mq totali129
  • Camere3
  • Camere doppie1
  • Camere singole2
  • Bagni1
  • Terrazzi1
  • Classe energeticaA1
  • StatoNuovo
  • AscensoreNo
  • Tipo costruzioneSignorile
  • CucinaA vista
  • GiardinoPrivato
  • RiscaldamentoAutonomo
  • AccessoriAntifurto, aria condizionata, doppi vetri, impianto fotovoltaico, impianto satellitare, ingresso indipendente, lavanderia, porta blindata, rete dati, ripostiglio, zanzariere
  • PortineriaNo
  • BoxSi
  • ProvinciaPesaro e urbino
  • ComuneMontelabbate
  • IndirizzoVia lunga
  • Data19-09-2025 05:55:01
  • CodiceEA-B3E54D
Real office serv. imm.
Piazza Della Repubblica 2 - Vallefoglia