vendita Via Mazara bilocale 65mq

58.000,00 €
0 Piace
0 Piace

Dati annuncio : Vendita vendita, Marsala

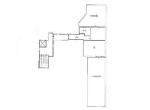
RIF.2683 - In vendita a Marsala, in Via Mazara (periferia lato Mazara). Bilocale di circa 65 mq posto al 1° piano con due ampie verande e posto auto interno. Composto da ingresso, cucina-soggiorno, camera, disimpegno e servizio. Richiesta EURO 58.000,00
CLASSE ENERGETICA: G

Accessori:
Ascensore, Veranda

  • PropostaOffro
  • ContrattoVendita
  • Prezzo58.000,00 €
  • Vani2
  • Numero piani4
  • Piano1
  • Mq terrazzo102
  • Mq totali65
  • Camere1
  • Bagni1
  • Terrazzi2
  • Posti auto1
  • Classe energeticaG
  • StatoNuovo
  • AscensoreSi
  • CucinaAngolo cottura
  • ArrediNon arredato
  • AccessoriAscensore, veranda
  • PortineriaNo
  • ProvinciaTrapani
  • ComuneMarsala
  • IndirizzoVia mazara
  • Data11-10-2025 06:11:44
  • CodiceEA-66A050
Dieffecasa
Piazza Giacomo Matteotti 15 - Marsala